K prodeji, , Šluknov, Tovární

 
 
nový
 
Lokalita:
Šluknov, Tovární
 
 
Cena:
6 900 000 Kč / za nemovitost
 
Lze financovat hypotečním úvěrem
 
uvedená cena je: včetně poplatků, včetně právního servisu Nabídněte prodejci Vaši cenu 
 
 

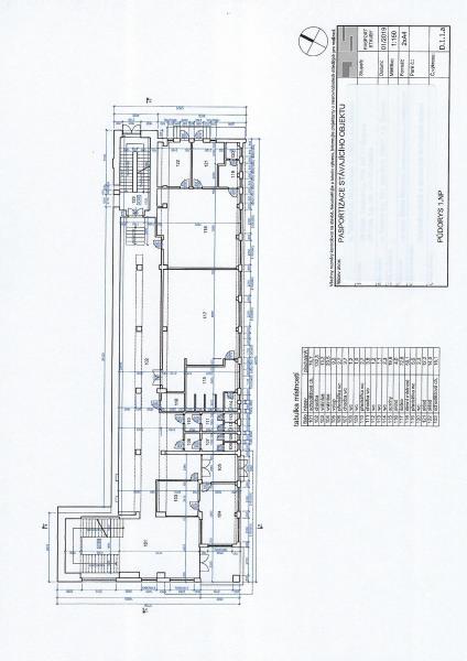
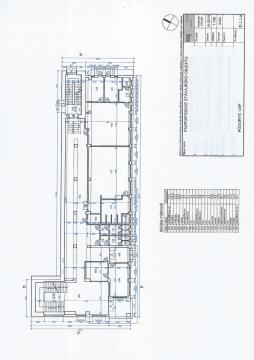
Nabízíme jedinečnou investiční příležitost v klidné části města Šluknov (okres Děčín) bývalou administrativní budovu s výrazným potenciálem přestavby na bytový dům. Na úvodní fotografii je zobrazena vizualizace možného budoucího stavu. Dle platného územního plánu je objekt určen k bydlení v bytových domech s možností výstavby až 4 nadzemních podlaží, což výrazně zvyšuje investiční potenciál nemovitosti. Základní parametry: Pozemek: 474 m and sup2; Zastavěná plocha: 474 m and sup2; Stávající užitná plocha: cca 432 m and sup2; Potenciální plocha po rozšíření: až cca 570 m and sup2; Investiční potenciál: možnost vybudování cca 16 až 20 bytových jednotek vhodné pro nájemní bydlení i následný prodej efektivní půdorys umožňující jednoduché dispoziční řešení Výhody projektu: možnost navýšení o další podlaží kompletní inženýrské sítě na hranici pozemku dobrá dopravní dostupnost (vlak cca 100 m) blízkost hranic (Německo vysoký nájemní potenciál) klidná lokalita vhodná pro rodinné bydlení Další potenciál: Možnost rozšíření projektu o sousední pozemky. V prezentaci jsou zahrnuty půdorysy jednotlivých podlaží a vizualizace možného budoucího řešení. Pro detailní informace, pasportizaci objektu a investiční podklady nás neváhejte kontaktovat.

 
zobrazit více
 
 
 


Doplňující informace:

ID inzerátu ESO: 4392165
Inzerát vydán: 23.03.2026
Inzerát aktualizován: 24.03.2026
ID zakázky v RK: 0
Budova je z: Cihla
Stav: Před rekonstrukcí
Umístění: Před rekonstrukcí
Užitná plocha: 432 m2
Podlahová plocha: 432 m2
Plocha pozemku: 474 m2
Zastavěná plocha: 474 m2
Energetická náročnost budovy:
G - Mimořádně nehospodárná
 
 

 

Bleskový dotaz makléři

K prodeji, , Šluknov, Tovární

Text dotazu *
Váš telefon *
Váš e-mail
Zobrazit kontaktní informace
Odeslat
 
 
 
 

Ve schránce je 0 inzerátů.

zobrazit celou schránku
 
 

Nalezli jsme dalších 8 nemovitostí v podobné ceně.

 
 
reklama