K prodeji, Rodinný dům, Staňkovice

 
 
 
exkluzivně
 
Lokalita:
Staňkovice
 
 
Cena:
5 950 000 Kč / za nemovitost
 
 
Nabídněte prodejci Vaši cenu 
 
 

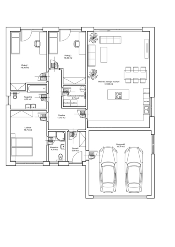
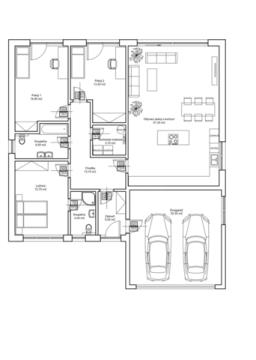
Nabízíme k prodeji moderní cihlovou novostavbu rodinného domu ve fázi hrubé stavby, nacházející se v klidné části obce Staňkovice, okres Louny. Dům představuje ideální příležitost dokončit si bydlení přesně podle vlastních představ, nebo využít možnost kompletní dostavby na klíč přímo od nás. Dům je navržen s důrazem na komfort rodinného bydlení a nabízí užitnou plochu 127 m² při zastavěné ploše 193 m². Dispozice zahrnuje čtyři prostorné pokoje s dostatkem místa pro rodinu, dětské pokoje, pracovnu i společný obytný prostor. Velkou výhodou je prostorná garáž o velikosti 35 m², která poskytuje komfortní parkování i dostatek prostoru pro uskladnění, dílnu nebo hobby zázemí. Celková plocha pozemku činí 857 m², z čehož zahrada o velikosti 664 m² nabízí široké možnosti využití. Je ideální pro vybudování terasy, pergoly, bazénu, dětského hřiště nebo relaxační zóny. Díky své velikosti poskytuje dostatek soukromí i prostoru pro rodinné aktivity. Dům je aktuálně nabízen ve fázi hrubé stavby, což umožňuje dokončení interiéru přesně dle vašich požadavků a standardu. Současně nabízíme možnost kompletní dostavby domu na klíč včetně všech profesí, finálních povrchů a připravenosti k okamžitému bydlení. Cena kompletně dokončeného domu na klíč činí 7 950 000 Kč. Nemovitost se nachází v klidné a bezpečné lokalitě vhodné pro rodinné bydlení. V obci je dostupná základní občanská vybavenost včetně mateřské a základní školy. Okolí nabízí příjemné prostředí s možností procházek, cyklovýletů a aktivního trávení volného času. Tato nemovitost představuje ideální příležitost pro ty, kteří hledají moderní rodinný dům s možností dokončení dle vlastních představ nebo bezstarostné řešení formou kompletní realizace na klíč v klidné lokalitě. Pro více informací, cenovou nabídku dostavby nebo domluvení prohlídky nás neváhejte kontaktovat.

 
zobrazit více
 
 
 


Doplňující informace:

ID inzerátu ESO: 4385786
Inzerát vydán: 20.02.2026
Inzerát aktualizován: 26.02.2026
ID zakázky v RK: 1232
Budova je z: Cihla
Stav: Velmi dobrý
Umístění: Velmi dobrý
Plocha pozemku: 857 m2
Užitná plocha: 127 m2
Podlahová plocha: 162 m2
Plocha zahrady: 663 m2
Zastavěná plocha: 193 m2
Energetická náročnost budovy:
B - Velmi úsporná
 
 

 

Bleskový dotaz makléři

K prodeji, Rodinný dům, Staňkovice

Text dotazu *
Váš telefon *
Váš e-mail
Zobrazit kontaktní informace
Odeslat
 
 
 
 

Ve schránce je 0 inzerátů.

zobrazit celou schránku
 
 

Nalezli jsme dalších 27 nemovitostí v podobné ceně.

 
 
reklama