K prodeji, Rodinný dům, Český Těšín, Horní Žukov

 
 
 
Lokalita:
Český Těšín, Horní Žukov
 
 
Cena:
14 990 000 Kč / za nemovitost
 
 
Nabídněte prodejci Vaši cenu 
 
 

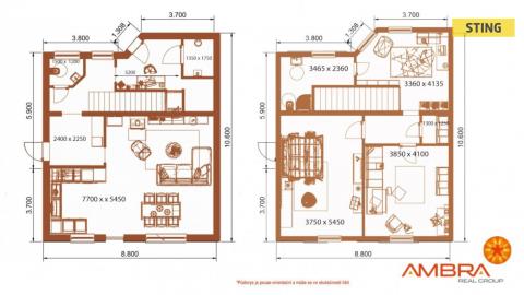
Naše společnost Vám nabízí komplex dvou samostatně stojích domů, s vlastními vstupy a pozemky, nacházející se v obci Horní Žukov. Nemovitosti byly zkolaudované na dvě bytové jednotky, spojené v mezidomí střechou, kde tímto vzniklo kryté posezení. Jedná se o zděné, zateplené, samostatné rodinné domy o zastavěné ploše 213m2, které jsou o dvou čtvercových stavbách o velikosti 2 x 5+kk, vedené pod jedním číslem popisným. Domy mají podružný elektroměr a vodoměr, samostatné vchody a jsou neprůchozí. Nemovitosti lze využít pro pohodové bydlení pro dvě rodiny, nebo lze spojit bydlení s podnikáním. Kolaudace objektu proběhla v roce 2009. V roce 2018 byla část objektu, která byla využívaná jako dvojgaráž s obytným patrem, přestavěna na bytovou jednotku o velikosti 5+kk. Každý dům má svou oplocenou zahradu. Dům A – dispoziční řešení – zádveří, kuchyně propojená s obývacím pokojem, který má výstup na přední terasu. V obývacím pokoji jsou umístěny krbová kamna, dále v tomto patře máme k dispozici, pracovnu, hostinský pokoj, oba s výstupem na zadní terasu, samostatné WC, sprchu, komoru a technickou místnost. Schodištěm se dostaneme do 2NP. kde se nachází pracovna, 2 samostatné pokoje, koupelna se sprchovým koutem a s WC, komora. Dům B – dispoziční řešení – zádveří chodba, vstup do koupelny – sprchový kout, WC, dále máme z chodby vstup do pracovny a obývacího pokoje, který je propojený s kuchyní. V obývacím pokoji je umístěn krb, je zde výstup na zadní terasu. Schodištěm se dostaneme do 2NP., kde jsou k dispozici tři prostorné pokoje, komora, koupelna s rohovou vanou, WC. Nemovitost je napojena na kanalizaci, elektřinu, vodovodní řád, možno připojit na optický kabel, který v blízkosti nemovitosti. Zdivo jsou pórobetonové tvárnice. Elektřina je vedena v mědi, voda v plastu. Střešní krytina pálená taška KM BETA, venkovní parapety žula. Vytápění je řešeno dvoumotorovým tepelným čerpadlem (vzduch – voda), v přízemí rodinných domů je podlahové topení, v 2NP, jsou závěsné radiátory. Nemovitost se nachází na pozemku o celkové výměře 2.119m2, který je celooplocen – prefabrikovaným betonovým plotem. Pozemek je vkusně rozdělen a lze jej využívat jak k pěstování, tak k relaxaci. Vstupní brána na dálkové ovládaní. Přístup z obecní cesty. Velmi dobrá dostupnost do Frýdku – Místku, Třince, Českého Těšína či Havířova (autobusová zastávka 350 m. od domu). Do konce prosince 2025 nabízíme prostřednictvím našeho partnera úrokové sazby od 4,29 % p.a. Více informací Vám sdělí náš specialista na prohlídce.

 
zobrazit více
 
 
 


Doplňující informace:

ID inzerátu ESO: 4343486
Inzerát vydán: 01.07.2025
Inzerát aktualizován: 28.11.2025
ID zakázky v RK: 132610
Budova je z: Cihla
Stav: Velmi dobrý
Umístění: Velmi dobrý
Plocha pozemku: 2119 m2
Užitná plocha: 340 m2
Podlahová plocha: 330 m2
Zastavěná plocha: 213 m2
Energetická náročnost budovy:
G - Mimořádně nehospodárná
 
 

 

Bleskový dotaz makléři

K prodeji, Rodinný dům, Český Těšín, Horní Žukov

Text dotazu *
Váš telefon *
Váš e-mail
Zobrazit kontaktní informace
Odeslat
 
 
 
 

Ve schránce je 0 inzerátů.

zobrazit celou schránku
 
 

Nalezli jsme dalších 6 nemovitostí v podobné ceně.

 
 
reklama