K prodeji, dům, Český Těšín, Ropická

 
 
 
Lokalita:
Český Těšín, Ropická
 
 
Cena:
10 490 000 Kč / za nemovitost
 
 
uvedená cena je: včetně provize Nabídněte prodejci Vaši cenu 
 
 

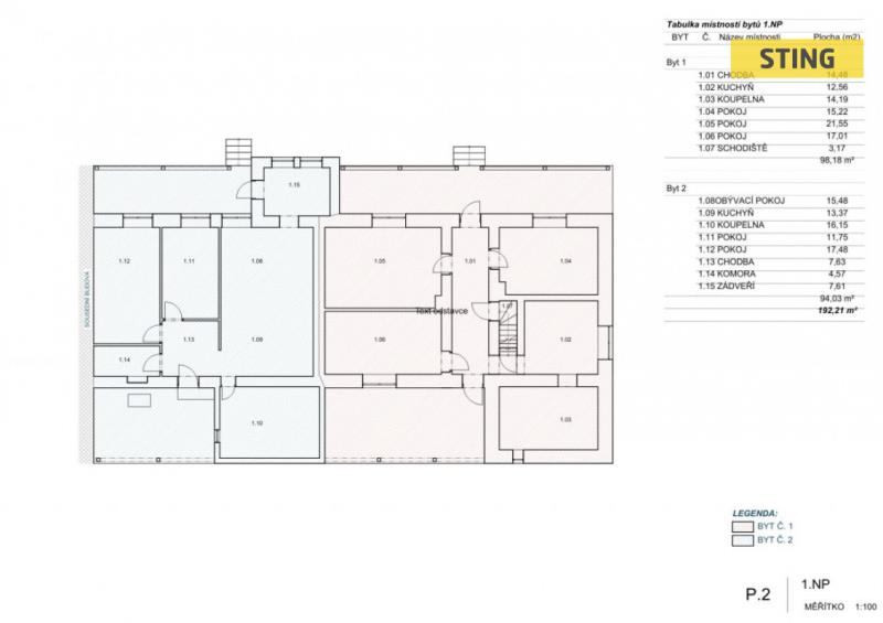
Rodinný dům se dvěma bytovými jednotkami, samostatné vstupy, terasy, zahrada, garáž a parkování – Dolní Žukov, Český Těšín. Nabízíme k prodeji rodinný dům o celkové obytné ploše 192 m² se dvěma samostatnými bytovými jednotkami, situovaný v klidné části Dolního Žukova. Dům nabízí výjimečnou kombinaci soukromí, prostoru a flexibility využití – ideální jak pro vícegenerační bydlení, tak jako investice k pronájmu. V domě se nachází pouze dvě bytové jednotky, každá s vlastním vstupem, což zajišťuje vysoký komfort a nezávislost bydlení. Pozemek o velikosti 1952 m². Byt 3+1 o užitné ploše 98 m² nabízí dvě zastřešené terasy, půdní prostor, garáž, parkovací stání, velmi prostornou koupelnu a pozemek o výměře 416 m² určený k užívání k této jednotce. Byt 3+kk o užitné ploše 94,2 m² disponuje dvěma zastřešenými terasami, dvěma vstupy, půdním prostorem, přístřeškem pro dvě vozidla, zahradním domkem a venkovním zázemím před i za domem. Rodinný dům i obě bytové jednotky prošly kompletní rekonstrukcí v roce 2025, která zahrnovala nové rozvody, podlahy, omítky, modernizaci koupelen, novou fasádu, plastová okna i plechovou střešní krytinu. Nemovitost nabízí široké možnosti využití – komfortní rodinné bydlení, vícegenerační soužití, kombinaci vlastního bydlení a pronájmu, případně čistě investiční záměr. Lokalita poskytuje klidné prostředí s výbornou dostupností a kompletní občanskou vybaveností v dosahu. Tento dům je ideální volbou pro klienty, kteří hledají nemovitost s nadstandardním prostorem, soukromím a variabilitou využití, a zároveň chtějí zůstat v rámci města. Pro více informací nebo domluvení prohlídky mě neváhejte kontaktovat. Do konce února 2026 nabízíme prostřednictvím našeho partnera úrokové sazby od 4,29 % p.a. Více informací Vám sdělí náš specialista na prohlídce.

 
zobrazit více
 
 
 


Doplňující informace:

ID inzerátu ESO: 4378420
Inzerát vydán: 07.01.2026
Inzerát aktualizován: 26.01.2026
ID zakázky v RK: 134268
Budova je z: Cihla
Stav: Velmi dobrý
Umístění: Velmi dobrý
Plocha pozemku: 1952 m2
Užitná plocha: 387 m2
Podlahová plocha: 192 m2
Zastavěná plocha: 257 m2
Energetická náročnost budovy:
G - Mimořádně nehospodárná
 
 

 

Bleskový dotaz makléři

K prodeji, dům, Český Těšín, Ropická

Text dotazu *
Váš telefon *
Váš e-mail
Zobrazit kontaktní informace
Odeslat
 
 
 
 

Ve schránce je 0 inzerátů.

zobrazit celou schránku
 
 

Nalezli jsme dalších 26 nemovitostí v podobné ceně.

 
 
reklama