K pronájmu, Rodinný dům, Brno, Havránkova

 
 
 
Lokalita:
Brno, Havránkova
 
 
Cena:
Info o ceně u RK
 
Info o ceně v RK + inkaso 10.000Kč/měs + kauce
 
uvedená cena je: bez provize, včetně právního servisu Nabídněte prodejci Vaši cenu 
 
 

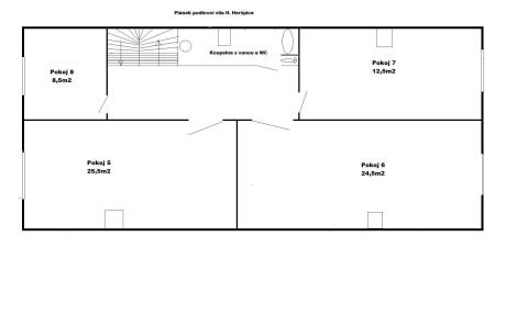
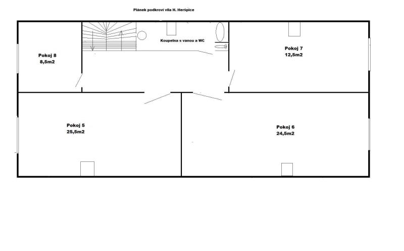
Nabízíme vám k pronájmu zařízenou pěknou vilu pro bydlení, nebo jako kanceláře s dostatkem parkovacího místa na vlastním pozemku, což jistě ocení zákazníci, či rodinní příslušníci. Vila se nachází v jižní části Brna, Dolní Heršpice při ul. Havránkova. Vila je po kompletní rekonstrukci s úžasnou dispozicí 9+kk a PP cca- 230 m2 rozloženou na 3.podlaží . Zahrada nabízí 250 m2. Nemovitost se nachází v klidné části s výbornou dostupností. Vhodné k dlouhodobému i krátkodobému pronájmu I.NP. nabídne velkou prosvětlenou halu, jídelní část, propojenou s kuchyňským koutem, který lze oddělit od obývací části posuvnými dveřmi, dále technickou místnost s pl. kombin. kondenzačním kotlem, koupelnu s whirpool. vanou a pračkou a WC. Prostorné zádveří s chodbou umožňující samost. vstupy do jednotl. místností se schodišťovou šachtou spojující jednotl. patra. Dům má samost. vchod i vstup zmíněnou halou. Celý pozemek je oplocen a opatřen bránou na dálkové ovládání i samost. vstupem.Odkaz na videoprohlídku, pokud se vám nezobrazuje: https://youtu.be/z_OQvXt3YHA?si=KwwP1C4ZslnTGKcP II.NP. se chodbou se dostanete do 4. neprůchozích pokojů, dále do koupelny s whirpool. vanou a sprch. koutem přípojkou na pračku a samost. WC. 2. Pokoje jsou s terasou, nebo francouzským balkónem. Podkroví- přístupné po centrálním schodišti se 4-mi pokoji se samost. vstupy -velkou koupelnou s vanou, WC a přípojením na pračku. Nad podkrovím se nachází velký úložný prostor přístupný z chodby půdním vstupem. Pozemek kolem vily nabízí parkování pro čtyři auta, zaparkoval by tam bez problémů i kamionový návěs, za vilkou je kovový uzamykatelný sklad 5 m2, terasami i venkovní betonový gril. Vila prošla rekonstrukcí nabídne především klid, myčku, novou pračku, novou velkou ledničku, vařidlovou desku, vestavnou troubu, bezpečnostní vnitřní systém se zabezpečovacím panelem, podlahové vytápění s regulací na chodbách a v kuchyni, radiátory v celém domě, internet, koupelna na každém patře i v podkroví. Zast. MHD BUS nedaleko. Energie, dle počtu osob-budou převedeny na vás a tak si sami pohlídáte spotřebu + kauce. Vila je volná ihned. Nezapomeňte si objednat prohlídku u makléře

 
zobrazit více
 
 
 


Doplňující informace:

ID inzerátu ESO: 4362833
Inzerát vydán: 04.10.2025
Inzerát aktualizován: 27.11.2025
ID zakázky v RK: 0
Budova je z: Cihla
Stav: Dobrý
Umístění: Dobrý
Plocha pozemku: 370 m2
Balkón: 6m2
Terasa: 30m2
Užitná plocha: 230 m2
Podlahová plocha: 250 m2
Plocha zahrady: 140 m2
Zastavěná plocha: 230 m2
Energetická náročnost budovy:
C - Úsporná
 
 

 

Bleskový dotaz makléři

K pronájmu, Rodinný dům, Brno, Havránkova

Text dotazu *
Váš telefon *
Váš e-mail
Zobrazit kontaktní informace
Odeslat
 
 
 
 

Ve schránce je 0 inzerátů.

zobrazit celou schránku
 
 
reklama