K pronájmu, Byt 3+kk, 73 m2, Brno, Řeznická

 
 
 
exkluzivně
nový
 
Lokalita:
Brno, Řeznická
 
 
Cena:
23 000 Kč / za nemovitost
 
+ 2 500 Kč za energie, 23 000 Kč kauce , + provize RK
 
Nabídněte prodejci Vaši cenu 
 
 

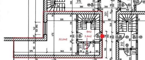
Nabízíme k pronájmu atypický mezonetový byt o velikosti 3+kk, nacházející se na ulici Řeznická, v části obce Trnitá v Brně. Tento jedinečný byt s celkovou plochou 65 m² se nachází ve třetím a čtvrtém nadzemní podlaží cihlového domu. Dispozice: 3.NP: obývací pokoj s kuchyňským koutem 22,2 m2, předsíň 8 m2, koupelna se sprchovým koutem 3,4 m2 4.NP: pokoj 10,2 m2, pokoj 8,8 m2, koupelna s vanou 5.6 m2 chodba 7,6 m2 Velkou devizou bytu jsou dvě koupelny - jedna se sprchovým koutem, druhá s vanou. Byt se nabízí, kromě kuchyňské linky s vestavěnými spotřebiči, nezařízená nábytkem. V bytě je k dispozici plynový kotel pro vytápění a elektrický bojler na ohřev vody. Dům je ve velmi dobrém stavu a je vybaven výtahem. K nemovitosti náleží také jedno parkovací místo, které je k dispozici za 1 000 Kč měsíčně. Okolí je dobře dostupné díky MHD, což zajišťuje snadný přístup do dalších částí města. V blízkosti se nachází veškerá občanská vybavenost, což naplňuje potřeby moderního bydlení. Vhodné pro max 4 osoby.

 
zobrazit více
 
 
 


Doplňující informace:

ID inzerátu ESO: 4374199
Inzerát vydán: 08.12.2025
ID zakázky v RK: 18203
Budova je z: Cihla
Stav: Velmi dobrý
Vlastnictví: Osobní
Umístění: Velmi dobrý
Obytná plocha: 73 m2
Užitná plocha: 65 m2
Podlahová plocha: 73 m2
Zastavěná plocha: 331 m2
Energetická náročnost budovy:
G - Mimořádně nehospodárná
 
 

 

Bleskový dotaz makléři

K pronájmu, Byt 3+kk, 73 m2, Brno, Řeznická

Text dotazu *
Váš telefon *
Váš e-mail
Zobrazit kontaktní informace
Odeslat
 
 
 
 

Ve schránce je 0 inzerátů.

zobrazit celou schránku
 
 

Nalezli jsme dalších 130 nemovitostí v podobné ceně.

 
 
reklama