K pronájmu, Byt 1+kk, 22 m2, Praha 4, Magistrů

 
 
 
exkluzivně
nový
 
Lokalita:
Praha 4, Magistrů
 
 
Cena:
12 000 Kč / za nemovitost
 
 
Nabídněte prodejci Vaši cenu 
 
 

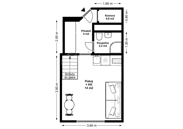
Chcete si pronajmout byt o dispozici 1+kk na klidném místě s dobrou dopravní dostupností do centra Prahy? Jeden takový mám pro vás v Praze 4 Michli. Popis bytu Bytový dům se nachází ve vedlejší méně frekventované ulici a je orientovaný na východ. Je v 1. patře a má 22 m2 + spací patro s úložným prostorem. Je rozdělený na obývací pokoj s kuchyňskou linkou (14 m2), koupelnu s toaletou (2,2 m2), předsíň (5 m2), komoru (0,8m2) a spací patro s úložným prostorem. Vybavení bytu V bytě je k dispozici kuchyňská linka s ledničkou, dvouplotýnkovým vařičem a digestoří, rozkládací pohovka a ve spacím patře jedna matrace (200 x 90 cm). Do spacího patra se vejde i větší matrace na rozměr 200 x 160 cm. Pračka je umístěna v suterénu domu, kde ji společně využívají obyvatelé menších bytů a náklad na vodu si rozpočítávají podle spotřeby. V bytě je možnost připojení TV, Internet a telefon. Náklady spojené s pronájmem bytu Měsíční nájemné – 12 000 Kč Měsíční zálohy na služby – 2 600 Kč Měsíční záloha na elektřinu – 600 Kč Kauce – 15 200 Kč Provize RK – 14 520 Kč Preferované podmínky pronájmu V současné době je byt volný. Nájemní smlouva na 1 rok s možností prodloužení. Smlouvu na elektřinu majitel nepřevádí na nájemce. Lokalita Nejbližší zastávka tramvají a autobusů je Pod Jezerkou, odkud se dostanete do 15 min do centra Prahy nebo za 6 minut ke stanici metra C Pankrác. Prohlídky První kolo prohlídek proběhne 8. dubna v odpoledních a večerních hodinách. Konkrétní časy budeme domlouvat během 7. dubna.

 
zobrazit více
 
 
 


Doplňující informace:

ID inzerátu ESO: 4394039
Inzerát vydán: 03.04.2026
ID zakázky v RK: 19358
Budova je z: Smíšená
Stav: Velmi dobrý
Vlastnictví: Osobní
Umístění: Velmi dobrý
Obytná plocha: 22 m2
Užitná plocha: 22 m2
Podlahová plocha: 22 m2
Energetická náročnost budovy:
D - Méně úsporná
 
 

 

Bleskový dotaz makléři

K pronájmu, Byt 1+kk, 22 m2, Praha 4, Magistrů

Text dotazu *
Váš telefon *
Váš e-mail
Zobrazit kontaktní informace
Odeslat
 
 
 
 

Ve schránce je 0 inzerátů.

zobrazit celou schránku
 
 

Nalezli jsme dalších 25 nemovitostí v podobné ceně.

 
 
reklama