K prodeji, Vila, Králův Dvůr, Na Vinohradech

 
 
 
Lokalita:
Králův Dvůr, Na Vinohradech
 
 
Cena:
19 750 000 Kč / za nemovitost
 
včetně provize, poplatků a právního servisu
 
uvedená cena je: včetně poplatků, včetně provize, včetně právního servisu, k jednání, s DPH Nabídněte prodejci Vaši cenu 
 
 

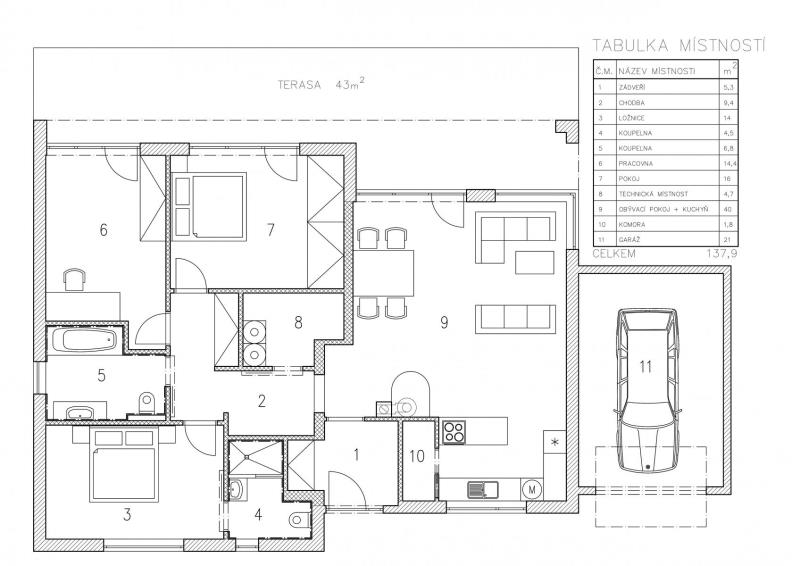
SNÍŽENÍ CENY PRODEJ MODERNÍHO A ELEGANTNÍHO BUNGALOVU 4+kk S PROSTORNOU TERASOU, BAZÉNEM A 2 GARÁŽEMI - KRÁLŮV DVŮR, KŘIŽATKY Toužíte po bydlení, které spojuje eleganci, soukromí a jedinečný kontakt s přírodou? Představuji Vám výjimečný, moderní bungalov z roku 2019, situovaný v klidné, slepé ulici nové rezidenční zástavby - Králův Dvůr, Křižatky. ul. Na Vinohradech na pozemku 663 m2. Tato nemovitost nabízí to, co je dnes skutečně vzácné - otevřený prostor, dostatek světla, soukromí a ničím nerušené výhledy do krajiny. DOMINANTOU DOMU je vzdušný obývací prostor s designovou kuchyní, který plynule navazuje na velkorysou terasu (cca 40 m2) orientovanou na jihovýchod. Každý den zde můžete začínat s výhledem do zeleně a v naprostém klidu. EXTERIÉR je navržen pro maximální komfort i relaxaci - najdete zde bazén, kryté venkovní posezení, plně vybavenou venkovní kuchyni i zázemí pro společenské chvíle s rodinou a přáteli. Díky svažitému pozemku máte zajištěn trvalý výhled do krajiny směrem na Koněpruské jeskyně, bez rizika další výstavby. DISPOZICE DOMU 4+kk je promyšlená do posledního detailu: (VIZ. PŮDORYS) - podlahová plocha cca 120 m2, užitná plocha s terasou cca 140 m2 + 2 garáže a prostor pod terasou - vstupní chodba/zádveří - prostorný obývací pokoj s designovou kuchyňskou linkou a komorou - hlavní ložnice s vlastní koupelnou - další dva pokoje s přímým vstupem na terasu - druhá koupelna s WC - technická místnost Cena domu zahrnuje i většinu vybavení, nábytek dle dohody. DŮRAZ NA KVALITU A CHYTRÉ TECHNOLOGIE: - moderní stavební systém Pasifbrick - kvalitně zateplená rovná střecha - elektrický - dálkově ovladatelný zámek - dům je napojen na elektřinu, vodovod a kanalizaci - elektrický kotel s podlahovým vytápěním + krbová kamna - plastová okna s trojskly - kvalitní interiérové dveře, většina pouzdrových - kvalitní podlahy - zabezpečovací a kamerový systém - nová filtrace a ohřev bazénu - energetická třída C (měsíční náklady cca 10.500 Kč) Komfort parkování zajišťují dvě garáže a další 2 parkovací místa na pozemku. Lokalita je ideální pro ty, kteří hledají klidné rodinné bydlení s výbornou dostupností - Beroun 9 km, Praha 30 km. V docházkové vzdálenosti je dětské a sportovní hřiště i MHD. Financování hypotečním úvěrem je samozřejmostí, rádi Vám zajistíme individuální podmínky. Tento dům není jen nemovitost. Je to životní styl. Zvu Vás na osobní prohlídku. V případě rychlého jednání další jednání o ceně nevylučujeme. Pozn. rozměry jsou orientační.

 
zobrazit více
 
 
 


Doplňující informace:

ID inzerátu ESO: 4395418
Inzerát vydán: 10.04.2026
Inzerát aktualizován: 03.05.2026
ID zakázky v RK: 0
Budova je z: Cihla
Stav: Velmi dobrý
Umístění: Velmi dobrý
Plocha pozemku: 663 m2
Terasa: 43m2
Užitná plocha: 140 m2
Podlahová plocha: 200 m2
Zastavěná plocha: 216 m2
Energetická náročnost budovy:
C - Úsporná
 
 

 

Bleskový dotaz makléři

K prodeji, Vila, Králův Dvůr, Na Vinohradech

Text dotazu *
Váš telefon *
Váš e-mail
Zobrazit kontaktní informace
Odeslat
 
 
 
 

Ve schránce je 0 inzerátů.

zobrazit celou schránku
 
 

Nalezli jsme dalších 21 nemovitostí v podobné ceně.

 
 
reklama