K prodeji, Rodinný dům, Vysoká Pec, Slunečné sady

 
 
nový
 
Lokalita:
Vysoká Pec, Slunečné sady
 
 
Cena:
10 500 000 Kč / za nemovitost
 
včetně provize
 
uvedená cena je: včetně provize Nabídněte prodejci Vaši cenu 
 
 

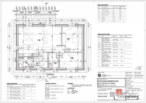
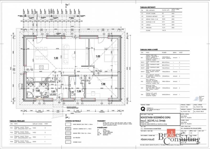
Nabízíme k prodeji moderní novostavbu rodinného domu typu bungalov o dispozici 4+kk, situovanou v klidné a vyhledávané lokalitě slunečné sady v obci Drmaly, s krásným výhledem na Krušné hory. Dům představuje ideální kombinaci komfortního bydlení v přírodě s výbornou dostupností do Chomutova a okolí. Celková užitná plocha domu činí 104,75 m² a je doplněna prostorným pozemkem o výměře 1 169 m², který nabízí dostatek prostoru pro zahradu, relaxaci i další využití dle představ nového majitele. Dispozice domu je navržena velmi prakticky a s důrazem na komfort každodenního bydlení. Dominantou domu je prostorný obývací pokoj s kuchyňským koutem o velikosti 49,6 m², který nabízí přímé propojení s venkovním prostorem a dostatek denního světla. Dále je k dispozici ložnice o výměře 19,75 m², dětský pokoj nebo pracovna o velikosti 14,15 m², koupelna o ploše 6,74 m², vstupní chodba 8 m² a technická místnost o velikosti 6,51 m². Nemovitost je nabízena ve stavu, kdy není dokončena kuchyňská linka, finální podlahy a koupelna včetně sanity a obkladů, což představuje významnou výhodu pro budoucí majitele, kteří si mohou interiér dokončit přesně podle vlastních představ a standardu. Zároveň je možné po dohodě zajistit kompletní dokončení na klíč dle výběru klienta. Tato nemovitost je tedy skvělou volbou pro klienty, kteří hledají moderní novostavbu s možností individuálního dokončení v atraktivní a klidné lokalitě. S financováním této nemovitosti Vám ráda pomůže naše hypoteční specialistka. K předání a nastěhování bude nemovitost začátkem roku 2027.

 
zobrazit více
 
 
 


Doplňující informace:

ID inzerátu ESO: 4393291
Inzerát vydán: 30.03.2026
Inzerát aktualizován: 02.04.2026
Budova je z: Cihla
Stav: Velmi dobrý
Umístění: Velmi dobrý
Plocha pozemku: 1169 m2
Užitná plocha: 104 m2
Energetická náročnost budovy:
G - Mimořádně nehospodárná
 
 

 

Bleskový dotaz makléři

K prodeji, Rodinný dům, Vysoká Pec, Slunečné sady

Text dotazu *
Váš telefon *
Váš e-mail
Zobrazit kontaktní informace
Odeslat
 
 
 
 

Ve schránce je 0 inzerátů.

zobrazit celou schránku
 
 

Nalezli jsme dalších 13 nemovitostí v podobné ceně.

 
 
reklama