K prodeji, Rodinný dům, Unhošť, Dědkův mlýn

 
 
 
Lokalita:
Unhošť, Dědkův mlýn
 
 
Cena:
6 950 000 Kč / za nemovitost
 
 
uvedená cena je: včetně provize Nabídněte prodejci Vaši cenu 
 
 

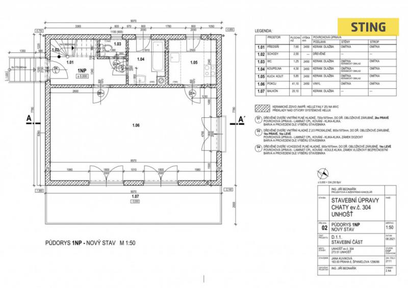
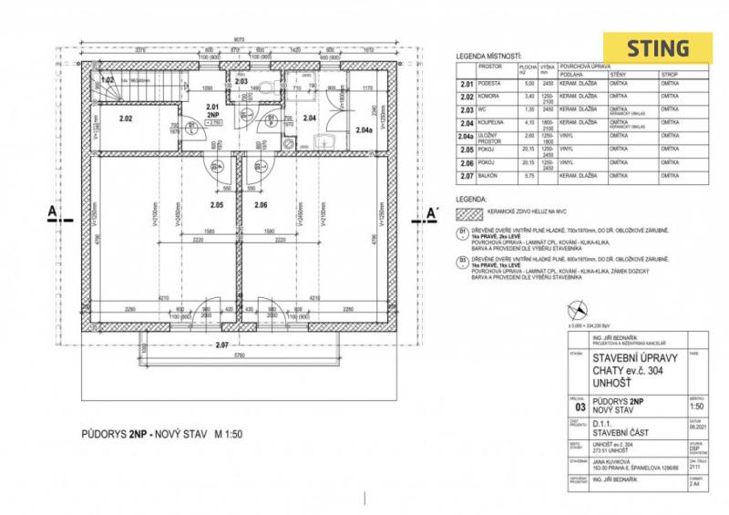
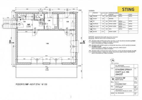
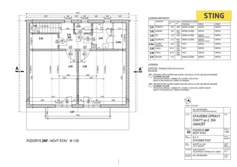
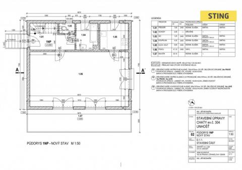
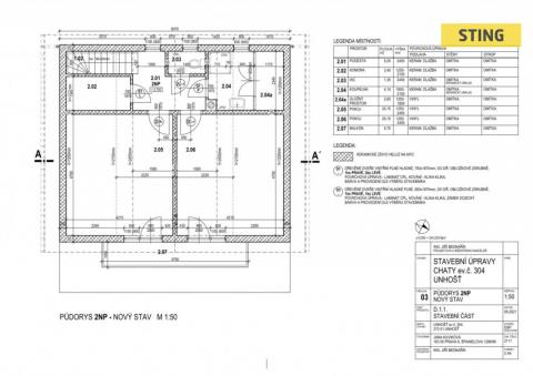
Hledáte místo v přírodě, kde si můžete vytvořit vlastní rekreační zázemí podle sebe, a přitom zůstat jen kousek od Prahy? V klidné a vyhledávané lokalitě Dědkův Mlýn u Unhoště nabízíme nemovitost s velkým potenciálem: dva navazující pozemky o celkové ploše 1 151 m², rozestavěnou stavbu s č. ev., vhodnou také k trvalému bydlení s platným stavebním povolením a krásné prostředí obklopené zelení. Nejde jen o koupi rozestavěné chaty. Kupujete především pozemkový celek v atraktivní lokalitě, kde si můžete dokončit stavbu podle vlastních představ a vytvořit si místo pro odpočinek, víkendy, rodinu i práci mimo ruch města. Stavba je vedená jako dům pro rod. rekreaci. Má zastavěnou plochu 72 m² a je ve fázi hrubé stavby z roku 2022. Dispozice počítá s obytným prostorem v přízemí, kuchyní, koupelnou s toaletou a podkrovím, kde je možné vytvořit dvě ložnice, šatnu a druhou koupelnu. Na hlavní pozemek se stavbou navazuje další větší pozemek, který rozšiřuje celkový prostor, přináší více soukromí a zvyšuje variabilitu využití celé nemovitosti. Je zde také možno postavit další stavbu pro rod. rekreaci. Pozemky jsou vedené na samostatných listech vlastnictví. Součástí nabídky je: • dva navazující pozemky o celkové ploše 1 151 m², • hrubá stavba s č. ev. o zastavěné ploše 72 m², • platné stavební povolení, • studna, • přívod elektřiny, • dotažené odpady, • příprava na ČOV, • garáž situovaná ve svahu s přístupem z obecní komunikace, • dva dřevníky, • přístup z obecní komunikace. Lokalita Dědkův Mlýn u Unhoště je vyhledávaná pro své klidné prostředí, přírodu, lesy a dobrou dostupnost do Prahy. Praha je vzdálená přibližně 20 km, díky čemuž je místo ideální pro ty, kteří chtějí mít vlastní zázemí v přírodě, ale nechtějí se vzdát blízkosti města. Díky dvěma navazujícím pozemkům, platnému povolení a atraktivní lokalitě jde také o zajímavou dlouhodobou investici. V rámci zprostředkování Vám rádi poradíme také s financováním. Na nemovitost lze čerpat hypoteční úvěr. Pokud hledáte klidné místo u Prahy s pozemkem, rozestavěnou povolenou stavbou a možností dokončení podle vlastních představ, rádi vás pozveme na prohlídku. V případě více zájemců si majitel vyhrazuje právo prodat nejvýhodnější nabídce. Do konce května 2026 nabízíme prostřednictvím našeho partnera úrokové sazby od 4,79 % p.a. Více informací Vám sdělí náš specialista na prohlídce.

 
zobrazit více
 
 
 


Doplňující informace:

ID inzerátu ESO: 4378871
Inzerát vydán: 09.01.2026
Inzerát aktualizován: 14.05.2026
ID zakázky v RK: 134156
Budova je z: Cihla
Stav: Ve výstavbě (nezkolaudováno)
Umístění: Ve výstavbě (nezkolaudováno)
Plocha pozemku: 1151 m2
Užitná plocha: 72 m2
Podlahová plocha: 72 m2
Zastavěná plocha: 72 m2
 
 

 

Bleskový dotaz makléři

K prodeji, Rodinný dům, Unhošť, Dědkův mlýn

Text dotazu *
Váš telefon *
Váš e-mail
Zobrazit kontaktní informace
Odeslat
 
 
 
 

Ve schránce je 0 inzerátů.

zobrazit celou schránku
 
 

Nalezli jsme dalších 46 nemovitostí v podobné ceně.

 
 
reklama