K prodeji, Rodinný dům, Týnec nad Labem, V Malém kopci

 
 
 
Lokalita:
Týnec nad Labem, V Malém kopci
 
 
Cena:
2 500 000 Kč / za nemovitost
 
cena včetně právního servisu a provize
 
uvedená cena je: včetně provize, včetně právního servisu, k jednání Nabídněte prodejci Vaši cenu 
 
 

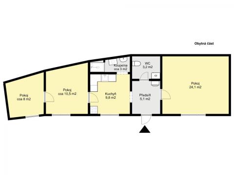
Dobrý den. Nabízím Vám ke koupi rodinný dům o dispozici 3+1 na adrese V Malém Kopci 112, Týnec nad Labem, s celkovou výměrou pozemku 275 m2. Dům je určen k rekonstrukci, což představuje skvělou příležitost vytvořit si bydlení přesně podle vlastních představ. Cena je k jednání. Konstrukce je řešena jako smíšené zdivo. Nemovitost je napojena na obecní vodovod, elektřinu a kanalizaci. Vytápění je zajištěno ústředním topením na tuhá paliva prostřednictvím krbových kamen, s rozvodem tepla pomocí radiátorů. Ohřev vody obstarává elektrický bojler. Dispozice domu se skládá ze vstupní chodby, tří pokojů, kuchyně, koupelny a samostatné prostorné toalety. Obytná část má přibližně 64 m2. Součástí domu je také dílna a technické zázemí, které se nachází pod obytnou částí, součástí tohoto zázemí je i vlastní toaleta. Tato část má rozlohu 35 m2. Před hlavním vstupem do domu se nachází terasa k příjemnému posezení. Týnec nad Labem disponuje veškerou občanskou vybaveností a nabízí příjemné a klidné prostředí pro rodinné bydlení s dobrou dopravní dostupností do okolních měst. V Kolíně jste do 15 minut autem. Vlakové nádraží je 5 minut chůze od domu. Nemovitost lze financovat hypotečním úvěrem, se kterým Vám rádi pomůžeme. Budu se těšit na případnou prohlídku. Uvedené m2 jsou pouze orientační.

 
zobrazit více
 
 
 


Doplňující informace:

ID inzerátu ESO: 4370068
Inzerát vydán: 14.11.2025
Inzerát aktualizován: 06.03.2026
ID zakázky v RK: 0
Budova je z: Smíšená
Stav: Před rekonstrukcí
Umístění: Před rekonstrukcí
Plocha pozemku: 275 m2
Terasa: ANO
Užitná plocha: 63 m2
Podlahová plocha: 63 m2
Plocha zahrady: 145 m2
Zastavěná plocha: 130 m2
Energetická náročnost budovy:
C - Úsporná
 
 

 

Bleskový dotaz makléři

K prodeji, Rodinný dům, Týnec nad Labem, V Malém kopci

Text dotazu *
Váš telefon *
Váš e-mail
Zobrazit kontaktní informace
Odeslat
 
 
 
 

Ve schránce je 0 inzerátů.

zobrazit celou schránku
 
 

Nalezli jsme dalších 4 nemovitostí v podobné ceně.

 
 
reklama