K prodeji, Rodinný dům, Přelouč, Gagarinova

 
 
 
exkluzivně
 
Lokalita:
Přelouč, Gagarinova
 
 
Cena:
7 500 000 Kč / za nemovitost
 
 
Nabídněte prodejci Vaši cenu 
 
 

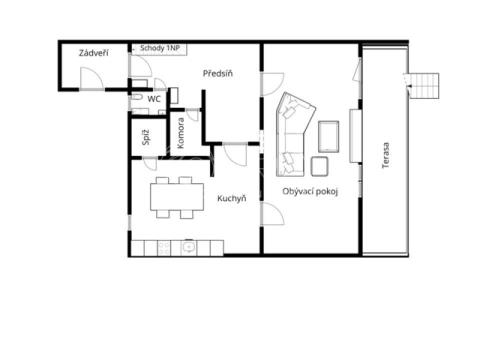
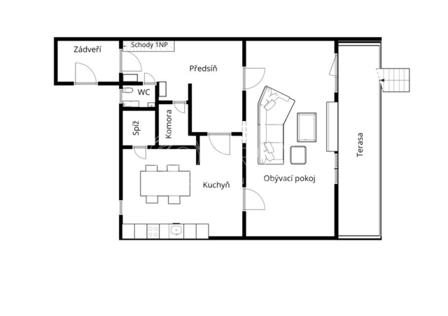
Nabízíme k prodeji řadový rodinný dům o dispozici 4+1, situovaný na adrese Gagarinova Č. p. 1213, Přelouč, okres Pardubice. Tento dvoupodlažní dům má zastavěnou plochu 89 m² a užitnou plochu 161 m², což poskytuje dostatek prostoru pro rodinné bydlení. Celková plocha parcely činí 333 m², zahrada má pak výměru 218 m². Vytápění objektu je zajištěno plynovým kotlem a kotlem na tuhá paliva, přičemž topení je rozvedeno do radiátorů. Odpad je napojen na kanalizaci a přívod vody zajišťuje vodovod. Nemovitost je kompletně podsklepena, s plochou sklepa 66 m², což poskytuje dostatek úložného prostoru. Součástí domu je také garáž o výměře 23 m², ideální pro bezpečné parkování. Ve druhém patře se nachází tři prostorné pokoje, z nichž dva jsou propojené balkonem, což poskytuje příjemné výhledy a možnost relaxace na čerstvém vzduchu. Obývací pokoj je propojen s terasou o výměře 21 m², ze které se dostanete přímo na zahradu. Tato zahrada je vynikajícím místem pro rodinné oslavy či odpočinek a nabízí prostor pro pěstování rostlin nebo zahradničení. Dům je připraven na rekonstrukci, což umožňuje novému majiteli přizpůsobit si interiér podle vlastních představ a potřeb. Konečná úprava domu může být skvělou příležitostí pro realizaci vlastního stylu bydlení. Dům se nachází v klidné lokalitě, která nabízí pohodlné spojení s okolní infrastrukturou, a to včetně vlakového a autobusového spojení. V případě zájmu o prohlídku nás neváhejte kontaktovat.

 
zobrazit více
 
 
 


Doplňující informace:

ID inzerátu ESO: 4376500
Inzerát vydán: 17.12.2025
Inzerát aktualizován: 10.02.2026
ID zakázky v RK: 18280
Budova je z: Cihla
Stav: Před rekonstrukcí
Umístění: Před rekonstrukcí
Plocha pozemku: 333 m2
Užitná plocha: 161 m2
Plocha sklepa: 66 m2
Plocha zahrady: 218 m2
Zastavěná plocha: 89 m2
Energetická náročnost budovy:
G - Mimořádně nehospodárná
 
 

 

Bleskový dotaz makléři

K prodeji, Rodinný dům, Přelouč, Gagarinova

Text dotazu *
Váš telefon *
Váš e-mail
Zobrazit kontaktní informace
Odeslat
 
 
 
 

Ve schránce je 0 inzerátů.

zobrazit celou schránku
 
 

Nalezli jsme dalších 38 nemovitostí v podobné ceně.

 
 
reklama