K prodeji, Rodinný dům, Lochenice

 
 
 
Lokalita:
Lochenice
 
 
Cena:
6 490 000 Kč / za nemovitost
 
cena včetně služeb RK
 
Rezervováno Nabídněte prodejci Vaši cenu 
 
 

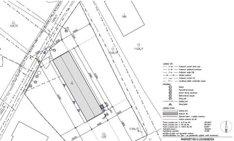
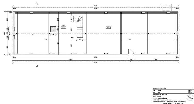
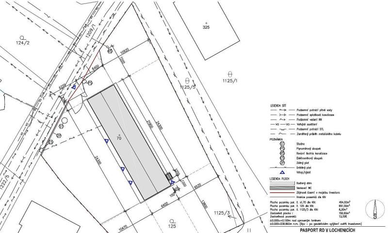
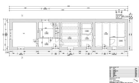
REZERVOVÁNO. Dobrý den, hledáte investiční nemovitost, ze které můžete vytvořit projekt domu o 3 bytech s předzahrádkami a vlastním parkováním? Nebo jen hledáte větší pozemek pro projekt svého rodinného domu? Pokud umíte najít a vytěžit potenciál u nemovitosti, mohla by Vás zaujmout tato naše nová nabídka. Jedná se o prodej rodinného domu, který se nachází na pozemku o celkové výměře 1.191 m2, v klidné části obce Lochenice, 15 minut jízdy autem od centra Hradce Králové. Dům je určen k celkové rekonstrukci, případně i demolici s využitím pozemku pro další plány. Jeho zastavěná plocha činí 156 m2. Byl postaven pravděpodobně již v 19. století a od té doby došlo k přístavbám jihovýchodním směrem, ale dům je již od poloviny 20. století bez výraznějším změn. IS: elektřina zavedena, předpřipravená kanalizační přípojka, předpřipravená plynová přípojka. Na pozemku se nachází vlastní studna. V územním plánu je celý pozemek zahrnut do území smíšeného obytného. A jak bylo uvedeno výše, nabídka je vhodná pro zájemce, který umí najít a vytěžit potenciál daného místa nebo stavby. Stávající půdorys domu je vhodný pro vybudování domu o 3 bytech, každý s vlastním parkováním a menší zahradou. Děkuji za pozornost a budu se těšit na komunikaci s Vámi. Václav Růžička, realitní specialista. Prodávající si vyhrazuje právo na výběr kupujícího dle vlastní úvahy (způsob úhrady kupní ceny, serióznost jednání apod.).

 
zobrazit více
 
 
 


Doplňující informace:

ID inzerátu ESO: 4354108
Inzerát vydán: 22.08.2025
Inzerát aktualizován: 23.01.2026
ID zakázky v RK: 0
Budova je z: Smíšená
Stav: Před rekonstrukcí
Umístění: Před rekonstrukcí
Plocha pozemku: 1191 m2
Užitná plocha: 252 m2
Podlahová plocha: 252 m2
Plocha zahrady: 1035 m2
Zastavěná plocha: 156 m2
Energetická náročnost budovy:
G - Mimořádně nehospodárná
 
 

 

Bleskový dotaz makléři

K prodeji, Rodinný dům, Lochenice

Text dotazu *
Váš telefon *
Váš e-mail
Zobrazit kontaktní informace
Odeslat
 
 
 
 

Ve schránce je 0 inzerátů.

zobrazit celou schránku
 
 

Nalezli jsme dalších 20 nemovitostí v podobné ceně.

 
 
reklama