K prodeji, Rodinný dům, Jesenec

 
 
 
exkluzivně
 
Lokalita:
Jesenec
 
 
Cena:
4 900 000 Kč / za nemovitost
 
 
Nabídněte prodejci Vaši cenu 
 
 

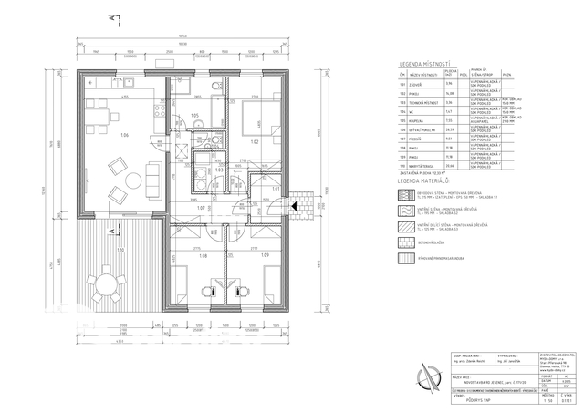
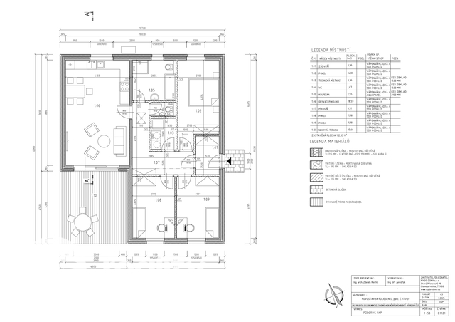
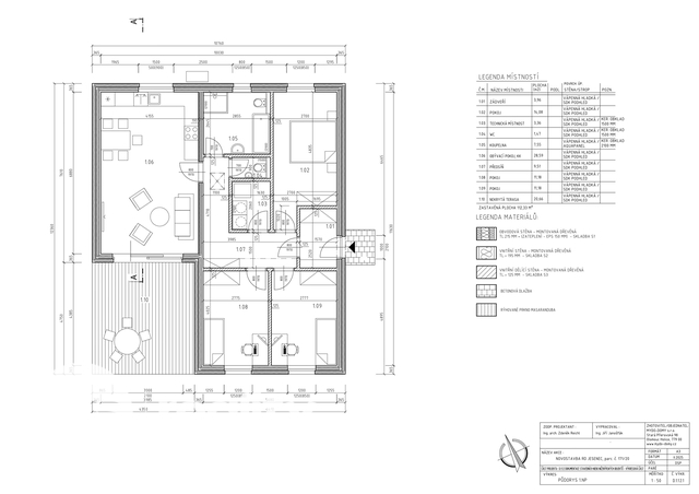
Toužíte po moderním a zároveň úsporném bydlení v klidné lokalitě? Právě pro vás je připraven tento rodinný dům v malebné obci Jesenec – spojení kvalitní dřevostavby, promyšleného řešení a možnosti individuálního přizpůsobení podle vašich potřeb. Energetický štítek: A/A+ Dům je postaven na stabilní rámové konstrukci z KVH hranolů, která zaručuje pevnost, dlouhou životnost a rychlost výstavby. Na výběr máte dva typy vnějšího opláštění – buď OSB desky (12 mm) jako cenově výhodnější varianta, nebo fermacell (12,5 mm), který nabízí zvýšenou protipožární odolnost. Zateplení stěn je řešeno minerální vatou (lambda 039, případně i 034 nebo 033 pro vyšší účinnost), na kterou navazuje parotěsná fólie a předstěna z hoblovaných latí (60/40 mm). Tudy vedou veškeré rozvody elektřiny a vody – vše je přehledně a prakticky uspořádané. Předstěnu je možné dle přání klienta dodatečně zateplit. Vnitřní prostor je uzavřen fermacell deskou a upraven do finální podoby – tmelení, broušení, penetrace a výmalba. Vnitřní příčky tvoří KVH hranoly (100/60 mm), opláštěné z obou stran fermacellem a vyplněné minerální izolací. I zde jsou vedeny rozvody, a to stejně jako ve zbytku domu výhradně stropem – díky tomu zůstává podlaha kompletně a kvalitně zateplená. V podlaze se nachází dvě vrstvy polystyrenu (100 mm a 80 mm pokládané do kříže), což přispívá k vysokému komfortu a energetické úspornosti. Podlahové vytápění si můžete zvolit podle vlastních preferencí – elektrické nebo vodní varianty. Krytina střechy je řešena elegantním falcovaným plechem – moderní, odolné a bezúdržbové řešení s důmyslně skrytými spoji, které zajišťují dlouhou životnost a estetický vzhled. Tato nemovitost je ideálním řešením pro ty, kdo chtějí kvalitní, udržitelné a moderní bydlení s možností úprav na míru. Jesenec je navíc lokalitou, která nabízí klid, dostatek prostoru i skvělou dostupnost do okolních měst. Možnost upravit technické parametry ke spokojenosti budoucího majitele. Neváhejte nás kontaktovat pro více informací nebo osobní prohlídku.

 
zobrazit více
 
 
 


Doplňující informace:

ID inzerátu ESO: 4330130
Inzerát vydán: 03.05.2025
Inzerát aktualizován: 30.01.2026
ID zakázky v RK: 1090
Budova je z: Dřevostavba
Stav: Velmi dobrý
Umístění: Velmi dobrý
Plocha pozemku: 468 m2
Užitná plocha: 113 m2
Zastavěná plocha: 130 m2
Energetická náročnost budovy:
A - Mimořádně úsporná
 
 

 

Bleskový dotaz makléři

K prodeji, Rodinný dům, Jesenec

Text dotazu *
Váš telefon *
Váš e-mail
Zobrazit kontaktní informace
Odeslat
 
 
 
 

Ve schránce je 0 inzerátů.

zobrazit celou schránku
 
 

Nalezli jsme dalších 27 nemovitostí v podobné ceně.

 
 
reklama