K prodeji, Rodinný dům, Dobřenice

 
 
 
Lokalita:
Dobřenice
 
 
Cena:
2 750 000 Kč / za nemovitost
 
cena včetně služeb RK
 
Rezervováno Nabídněte prodejci Vaši cenu 
 
 

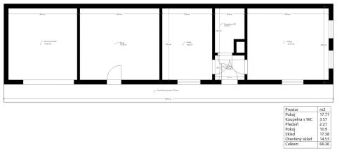
Rezervováno. Dobrý den, máte rádi výzvy a hledáte chalupu, kde se ,,zastavil čas and #34; nebo jen cenově dostupnou nemovitost v klidném místě, ale s dobrým dopravním napojením? Možná hledáte jen pozemek k výstavbě menšího domu, například modulárního, mobilního domu, Tiny house apod. a potřebujete vhodné místo, ale prázdné nezastavěné pozemky bez vzrostlé zeleně Vás neoslovují? Možná právě Vás by mohla oslovit naše nová nabídka. Jedná se o prodej, dle evidence, rodinného domu, ale spoustu let slouží jako chalupa. Umístěný je v klidném místě na okraji obce Dobřenice v sousedství lesa. Celková výměra pozemku činí 947 m2 a je částečně svažitý. Jeho svažitost je právě jeho přednost, protože při umístění mobilního domu na tomto pozemku ve svahu dochází k výhledu přes střechy do dáli, a to na dobřenický zámek. Dobřenice jsou výborně dopravně dostupné, protože je zde sjezd z dálnice D11 a do Hradce Králové máte dojezd 20 minut, do Pardubic o pár minut více. Z Prahy hodinu a z Kolína půl hodiny. Takže za tyto skvělé časy se můžete přesunout do Dobřenic, na místo, které je obklopené zelení, místním klidem, ale i historií nejen nedalekého zámku. Interiér předmětného rodinného domu je ve stavu, který je vhodný pro nadšence a zájemce, kteří mají rádi výzvy. Dům obsahuje dvě obytné místnosti, koupelnu s WC a dva skládky. Pro ostatní zájemce se dá stav hodnotit jako k celkové rekonstrukci/ demolici s přiblížením se k dnešním představám. Ze dvou třetin má novou střešní krytinu. Objekt je připojen k inženýrským sítím - elektřina, vodovod, kanalizace. 5 důvodů proč uvažovat o koupi: 1. Klidné místo v sousedství lesa. 2. Výborná dopravní dostupnost do velkých měst. 3. Potenciál k výstavbě malého domku s využitím zavedených sítí. 4. V místě dobrá občanská vybavenost. 5. Dobrý poměr cena/ výkon. Děkuji za pozornost a budu se těšit na komunikaci s Vámi. Václav Růžička, realitní specialista. Prodávající si vyhrazuje právo na výběr kupujícího dle vlastní úvahy (způsob úhrady kupní ceny, serióznost jednání apod.).

 
zobrazit více
 
 
 


Doplňující informace:

ID inzerátu ESO: 4362247
Inzerát vydán: 30.09.2025
Inzerát aktualizován: 16.11.2025
ID zakázky v RK: 0
Budova je z: Smíšená
Stav: Před rekonstrukcí
Umístění: Před rekonstrukcí
Plocha pozemku: 947 m2
Užitná plocha: 66 m2
Podlahová plocha: 66 m2
Plocha zahrady: 861 m2
Zastavěná plocha: 86 m2
Energetická náročnost budovy:
G - Mimořádně nehospodárná
 
 

 

Bleskový dotaz makléři

K prodeji, Rodinný dům, Dobřenice

Text dotazu *
Váš telefon *
Váš e-mail
Zobrazit kontaktní informace
Odeslat
 
 
 
 

Ve schránce je 0 inzerátů.

zobrazit celou schránku
 
 

Nalezli jsme dalších 7 nemovitostí v podobné ceně.

 
 
reklama