K prodeji, dům, 45 m2, Chyňava

 
 
 
exkluzivně
 
Lokalita:
Chyňava
 
 
Cena:
1 650 000 Kč / za nemovitost
 
Cena je uvedena včetně provize, právního servisu včetně advokátní úschovy kupní ceny
 
uvedená cena je: včetně provize Nabídněte prodejci Vaši cenu 
 
 

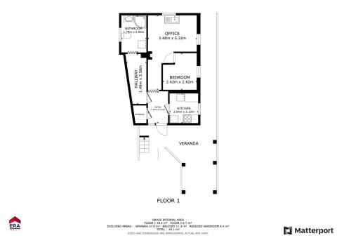
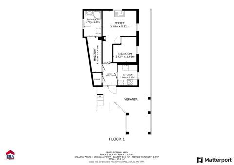
Rekreační chata s vlastním pozemkem v malebné obci Chyňava Představujeme Vám útulnou rekreační chatu v krásné přírodní lokalitě Středočeského kraje, v obci Chyňava (okres Beroun) blízko osady Dědkův Mlýn. Chata stojí na zastavěné ploše 33 m² (pozemek na kterém chata stojí je v dlouhodobém pronájmu) , přičemž k ní patří vlastní pozemek o výměře 241 m² na kterém je umístěn vrt se zdrojem vody. Celý pozemek poskytuje dostatek prostoru pro zahradu, relaxační zónu nebo drobné zahradnické aktivity. Užitná plocha chaty činí 55 m², s dispozicí 2+1 , což zahrnuje obytnou místnost, kuchyňský kout, malou ložnici, sociálním zařízením s WC a sprchou, ložnici v podkroví a další nezbytné zázemí pro pohodlný celoroční pobyt. Chata je rozdělena do dvou nadzemních podlaží, částečně zařízená a připravena k okamžitému užívání. Vytápění je řešeno vlastní klimatizační jednotkou (v létě chladí, v zimě hřeje) a krbovými kamny. Chyňava je klidná obec s malebnou přírodou, která je ideální pro rekreační aktivity i odpočinek. V blízkosti naleznete veškerou občanskou vybavenost, včetně obchodů, restaurací, pošty, sportovišť a lékaře. Výborné dopravní spojení zajišťující autobusové linky, silnice první třídy a snadná dostupnost autem. Okolí nabízí možnosti pro pěší turistiku, cyklovýlety nebo houbaření, což z této lokality představuje ideální místo pro milovníky přírody. Tato chata je vhodná pro sezónní rekreaci i celoroční rekreační bydlení díky svému praktickému zázemí a blízkosti služeb a nabízí příležitost spojit klid přírody s komfortem vlastního rekreačního zázemí. Neváhejte nás kontaktovat pro více informací nebo prohlídku! Disclaimer: Uvedené výměry jsou orientační. V případě více zájemců bude nemovitost prodána nejlepší nabídce a majitel si vyhrazuje právo vybrat kupujícího na základě jím zvolených kritérií. Veškeré zveřejněné údaje obsažené v tomto inzerátu mají pouze informativní charakter a nejsou nabídkou ve smyslu § 1731 nebo § 1732 občanského zákoníku, ani se nejedná o veřejný příslib dle § 1733 občanského zákoníku.

 
zobrazit více
 
 
 


Doplňující informace:

ID inzerátu ESO: 4302329
Inzerát vydán: 06.01.2025
Inzerát aktualizován: 27.04.2026
ID zakázky v RK: 7100850
Budova je z: Dřevostavba
Stav: Dobrý
Vlastnictví: Osobní
Umístění: Dobrý
Zařízení bytu: Částečně zařízený
Užitná plocha: 45 m2
Plocha pozemku: 241 m2
Plyn: Není
Voda: Vlastní studna
Vytápění: Lokální elektrické
Parkování: U domu (veřejné)
Podlahová plocha: 45 m2
Zastavěná plocha: 33 m2
Energetická náročnost budovy:
G - Mimořádně nehospodárná
 
 

 

Bleskový dotaz makléři

K prodeji, dům, 45 m2, Chyňava

Text dotazu *
Váš telefon *
Váš e-mail
Zobrazit kontaktní informace
Odeslat
 
 
 
 

Ve schránce je 0 inzerátů.

zobrazit celou schránku
 
 

Nalezli jsme dalších 1 nemovitostí v podobné ceně.

 
 
reklama