K prodeji, , 93 m2, Tavíkovice

 
 
 
exkluzivně
 
Lokalita:
Tavíkovice
 
 
Cena:
1 790 000 Kč / za nemovitost
 
cena je včetně provize, právních služeb a VIP servisu :-)
 
Nabídněte prodejci Vaši cenu 
 
 

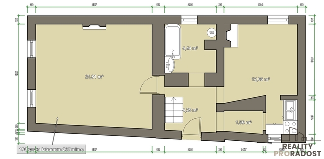
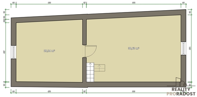
Nabízíme k prodeji stylovou chalupu v obci Dobronice u Tavíkovic, vhodnou k rekreaci i postupné rekonstrukci dle vlastních představ. Chalupa má obytnou plochu cca 95 m² (spodní patro cca 44 m², podkroví cca 51 m²) a stojí na pozemku o výměře 180 m². Součástí je uzavřený dvůr, který poskytuje dostatek soukromí. Nemovitost je možné ihned užívat. Zároveň je však potřeba počítat s postupnou rekonstrukcí a modernizací. Technické informace a vybavení: zavedený plyn ústřední vytápění s plynovým kotlem a radiátory s rozvody v mědi elektřina (doporučena modernizace rozvodů) voda odpad řešen trativodem dům je suchý, bez známek vzlínající vlhkosti ve spodním patře betonové podlahy střecha s pálenou krytinou Dispozice: vstupní předsíň se vstupy do jednotlivých místností obytná místnost s krbem kuchyně koupelna obytné podkroví s možností vybudování až 2–3 pokojů a druhé koupelny Další informace: toaleta je aktuálně umístěna mimo hlavní obytnou část (za chalupou, přístup pod střechou) součástí pozemku je kamenná stodola ve zhoršeném technickém stavu za domem je užíván pozemek, který není součástí listu vlastnictví nízké stropy a průchody odpovídají charakteru původní venkovské stavby Chalupa je vhodná pro zájemce, kteří hledají autentickou nemovitost s atmosférou a jsou připraveni ji postupně upravit dle svých představ. Více fotografií a detailů naleznete na webu nemovitosti https://tomikoceski.cz/stylova-chalupa/. A samozřejmě vás rádi přivítáme osobně na prohlídce.

 
zobrazit více
 
 
 


Doplňující informace:

ID inzerátu ESO: 4392028
Inzerát vydán: 21.03.2026
Inzerát aktualizován: 30.03.2026
ID zakázky v RK: 29361
Budova je z: Smíšená
Stav: Před rekonstrukcí
Umístění: Před rekonstrukcí
Plocha: 93 m2
Plocha pozemku: 87 m2
Užitná plocha: 95 m2
Podlahová plocha: 95 m2
Plocha zahrady: 87 m2
Zastavěná plocha: 93 m2
Energetická náročnost budovy:
G - Mimořádně nehospodárná
 
 

 

Bleskový dotaz makléři

K prodeji, , 93 m2, Tavíkovice

Text dotazu *
Váš telefon *
Váš e-mail
Zobrazit kontaktní informace
Odeslat
 
 
 
 

Ve schránce je 0 inzerátů.

zobrazit celou schránku
 
 

Nalezli jsme dalších 2 nemovitostí v podobné ceně.

 
 
reklama