K prodeji, Byt 4+1, 175 m2, Praha 2, Uruguayská

 
 
 
exkluzivně
 
Lokalita:
Praha 2, Uruguayská
 
 
Cena:
29 990 000 Kč / za nemovitost
 
 
Nabídněte prodejci Vaši cenu 
 
 

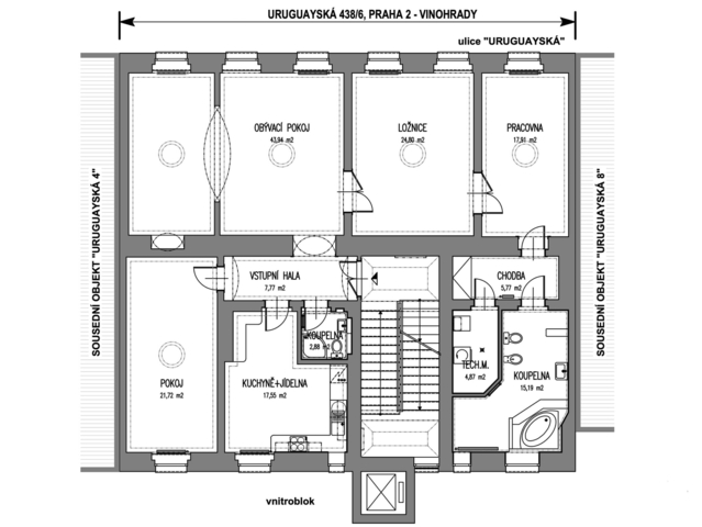
Koupě bytu na pražských Vinohradech patří mezi nejstabilnější rezidenční investice: tradiční čtvrť s aktivním společenským životem, špičkovými školami, kavárnami a restauracemi, perfektní dopravní dostupností do centra a množstvím zeleně v okolních parcích. Nabízíme prostorný byt 4+1 o užitné ploše 162,4 m² ve 3. NP / 2. patře udržovaného historického cihlového domu ve Vinohradech, ul. Uruguayská. Jednotka zabírá celé patro a vznikla sloučením tří původních bytů, což zajišťuje mimořádné soukromí i flexibilitu pro další úpravy dispozic. Současné uspořádání: velký obývací prostor vzniklý propojením dvou místností + herna / hudební kout s klavírním křídlem, samostatná kuchyně s jídelnou, dále tří velké pokoje, dvě koupelny, samostatné WC, technická místnost a široké chodby. Celkové členění ploch: obytná část 108,4 m², kuchyně + jídelna 17,6 m², zázemí (koupelny, komunikace, technická část) 36,4 m². Byt prošel při sloučení celkovou modernizací – nové měděné elektro rozvody, nové rozvody vody a kanalizace s měřením T/S, vytápění a TUV z vlastního plynového kotle se zásobníkem, rozvody do radiátorů, příprava na vysokorychlostní internet a kabelovou TV (optická síť). Stav hodnocen jako velmi dobrý; konstrukce bez zjevných poruch. Dům je reprezentativní vinohradská činžovní stavba z přelomu 19./20. století; vstupní vestibul navazuje na průjezd do zeleného vnitrobloku, schodiště po kompletní renovaci, přístup k výtahu z mezipodest. Lokalita: stabilizované obytné území v městské památkové zóně Vinohrady; v docházce metro A – Náměstí Míru, tramvaje i autobusy, bohatá občanská vybavenost, parky typu Riegrovy sady. Území napojeno na všechny městské sítě (voda, kanalizace, plyn, elektřina, data) a leží mimo záplavové území. Právní a technické jistoty: byt v osobním vlastnictví. Nemovitost se nachází v běžné městské zástavbě mimo zvláštní ochranná nebo bezpečnostní pásma; objekt není v záplavovém území ani v ochranném pásmu kulturní památky dle evidence NPÚ. Vybavení, materiály & atmosféra • Původní dřevěná špaletová okna (zachovalá; přirozené větrání, historický charakter). • Dubové parkety ve většině obytných místností; dlažby ve zázemí. • Vlastní plynový kotel – topení + TUV (kombinovaný). • Rozvody v mědi, měřená voda, radiátory. • Optické datové připojení možné. Úložné prostory K bytu náleží sklepní místnost cca 9 m² Investiční potenciál Díky historickému sloučení tří bytů lze uvažovat o několika scénářích: zachování velkorysého rodinného bytu, rozčlenění na více apartmánů pro nájemní výnos, či částečná rekonstrukce s vyčleněním pracovny / ordinace (po projednání se stavebním úřadem). Základní podklady v pasportu k dispozici. Cena a financování 29 990 000 Kč (≈ 185 tis. Kč/m² při 162 m² užitné plochy; sklep 9 m² nezapočten). Zálohy na společné domovní služby, fond oprav a vodu činí pouze 6 097 Kč / měsíc. SVJ je dobře hospodařící, bez dluhů a s řádně vedeným fondem oprav. Byt je bez právních vad, hypoték a závazků

 
zobrazit více
 
 
 


Doplňující informace:

ID inzerátu ESO: 4347051
Inzerát vydán: 18.07.2025
Inzerát aktualizován: 19.03.2026
ID zakázky v RK: 27097
Budova je z: Smíšená
Stav: Velmi dobrý
Vlastnictví: Osobní
Umístění: Velmi dobrý
Obytná plocha: 175 m2
Užitná plocha: 165 m2
Podlahová plocha: 175 m2
Plocha sklepa: 10 m2
Energetická náročnost budovy:
D - Méně úsporná
 
 

 

Bleskový dotaz makléři

K prodeji, Byt 4+1, 175 m2, Praha 2, Uruguayská

Text dotazu *
Váš telefon *
Váš e-mail
Zobrazit kontaktní informace
Odeslat
 
 
 
 

Ve schránce je 0 inzerátů.

zobrazit celou schránku
 
 

Nalezli jsme dalších 3 nemovitostí v podobné ceně.

 
 
reklama