K prodeji, Byt 3+kk, 95 m2, Praha 9, Škrábkových

 
 
nový
 
Lokalita:
Praha 9, Škrábkových
 
 
Cena:
11 950 000 Kč / za nemovitost
 
 
uvedená cena je: včetně poplatků, včetně provize Nabídněte prodejci Vaši cenu 
 
 

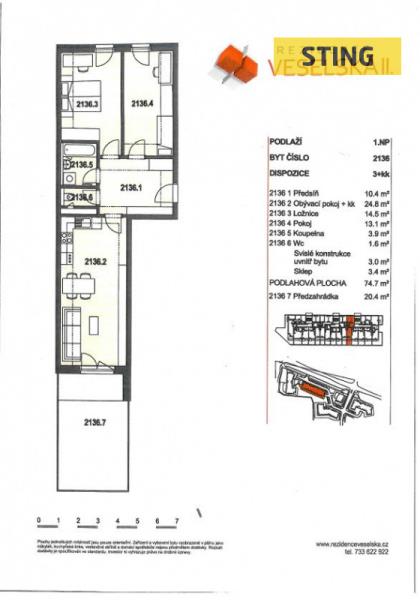
Prodej bytu 3+kk 74,4m s předzahradkou 20,4m – Praha 9, Letňany Hledáte domov, který v sobě spojuje kvalitu materiálů, styl a absolutní klid? Nabízíme k prodeji výjimečný byt 3+kk o rozloze 74,4 m² s jižně orientovanou předzahrádkou (20,4 m²). Tento byt byl realizován v nadstandardu a jeho atmosféra vás okamžitě přenese do slunné Provence. Celý interiér byl navržen s důrazem na špičkovou kvalitu a harmonii. V celém bytě byly použity nadstandardní bezfalcové dveře Sapelli Harmony, pohlady BARKOTEX Egger. Vše materiály v přirozených barvách země, dřeva a kamene. Styl Provence: Díky světlému nábytku a přírodním textiliím je byt maximálně napojen na okolní zeleň, která začíná přímo u vašich dveří. Kuchyně jako umělecké dílo – poctivé řemeslo Dušek: Srdcem bytu je luxusní kuchyňská linka vyrobená na míru vyhlášeným studiem Dušek. Kvalita bez kompromisů: Kuchyně je navržena pro náročné uživatele, s důrazem na detail a špičkovou ergonomii. Vybavení: Součástí je stylový barový ostrov a vestavné spotřebiče včetně široké myčky nádobí. Dispozice a vybavení Srdce domova (24,8 m²): Obývací pokoj plynule propojený s kuchyní Dušek a vstupem na zahradu. Prostor pro rodinu: Dvě ložnice (14,5 m² a 13,1 m²) a velkorysá předsíň (10,4 m²), kam díky chytrému řešení schováte vše potřebné. Koupelna a WC: Koupelna je vybavena jak pračkou, tak sušičkou, a ladí s přírodním konceptem celého bytu. Jižní předzahrádka a aktivní život v zeleni Z obývacího pokoje vstoupíte na slunnou předzahrádku situovanou do tiché zóny bez pohybu lidí. Tato oáza klidu je jen branou k aktivnímu vyžití – v bezprostřední blízkosti se nachází Lesopark Letňany, který nabízí: Množství zábavy pro děti, moderní cyklopark a síť in-line stezek. Ideální prostředí pro ranní běh, venčení psů nebo dlouhé procházky v přírodě. Parkování a zázemí – Komfort bez kompromisů Široké parkovací stání: V suterénu, vhodné i pro velká SUV. Velký sklep (3.4 m²): Strategicky umístěný přímo u parkovacího místa – ideální pro rychlé vyložení nákupu, kol nebo lyží. Úsporné a bezstarostné bydlení Energetická náročnost: Třída B – velmi nízké provozní náklady. Měsíční poplatky: 6 800 Kč (fond oprav, teplo, voda, správa) + elektřina. Dostupnost: Vše potřebné (OC Letňany, metro C, školy) máte v pěší dostupnosti. Tento byt není jen nemovitost, je to životní styl. Kombinace poctivého truhlářského řemesla, nadstandardních přírodních materiálů a klidné lokality u lesoparku z něj dělá jeden z nejzajímavějších bytů v Letňanech. Zavolejte mi a přijďte se o tom přesvědčit sami!. Do konce dubna 2026 nabízíme prostřednictvím našeho partnera úrokové sazby od 4,69 % p.a. Více informací Vám sdělí náš specialista na prohlídce.

 
zobrazit více
 
 
 


Doplňující informace:

ID inzerátu ESO: 4399847
Inzerát vydán: 24.04.2026
ID zakázky v RK: 135290
Budova je z: Smíšená
Stav: Velmi dobrý
Vlastnictví: Osobní
Umístění: Velmi dobrý
Obytná plocha: 95 m2
Terasa: 20m2
Užitná plocha: 75 m2
Podlahová plocha: 95 m2
Plocha zahrady: 20 m2
Energetická náročnost budovy:
B - Velmi úsporná
 
 

 

Bleskový dotaz makléři

K prodeji, Byt 3+kk, 95 m2, Praha 9, Škrábkových

Text dotazu *
Váš telefon *
Váš e-mail
Zobrazit kontaktní informace
Odeslat
 
 
 
 

Ve schránce je 0 inzerátů.

zobrazit celou schránku
 
 

Nalezli jsme dalších 54 nemovitostí v podobné ceně.

 
 
reklama