K prodeji, Byt 3+kk, 63 m2, Moravský Beroun, gen. Svobody

 
 
 
Lokalita:
Moravský Beroun, gen. Svobody
 
 
Cena:
2 990 000 Kč / za nemovitost
 
 
Nabídněte prodejci Vaši cenu 
 
 

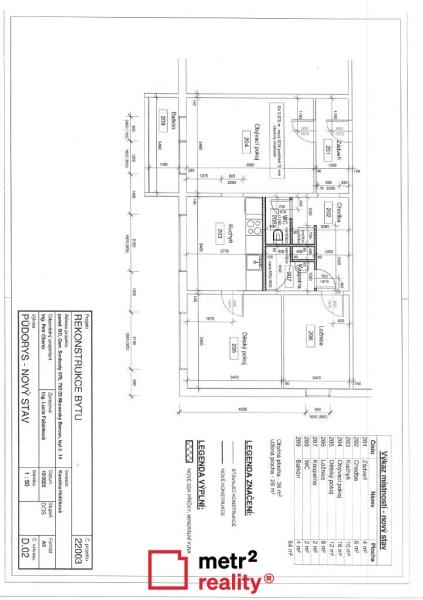
Ve výhradním zastoupení si Vám dovolujeme nabídnout prodej velmi pěkného, kompletně zrekonstruovaného bytu o dispozici 3+k na ulici Generála Svobody v Moravském Berouně. Jednotka je umístěna ve 3. NP osmipodlažního panelového domu umístěného klidné lokalitě na jižní straně města. Celková podlahová plocha bytu je 61 m2 a patří k němu lodžie a sklepní kóje v suterénu domu. Orientace bytu je slunná, jiho-západní. Komplexní rekonstrukce bytu proběhla v roce 2022 a zahrnovala změnu dispozice, vyzdění jádra, nové rozvody elektřiny, ve dvou pokojích a kuchyni nové radiátory, nové jsou laminátové podlahy, dveře včetně zárubní a designová kuchyňská linka na míru. Nedílnou součástí rekonstrukce byly omítky a sádrokartonové podhledy. Dům je po renovaci (zateplená fasáda, střecha, stoupačky, vchody). K přednostem jednotky patří neprůchozí pokoje, a dále umístění domu v blízkosti centra, MŠ, ZUŠ, dětského hřiště nebo např. knihovny. PENB v kategorii B. Bližší informace v RK.

 
zobrazit více
 
 
 


Doplňující informace:

ID inzerátu ESO: 4372498
Inzerát vydán: 28.11.2025
ID zakázky v RK: 2982
Budova je z: Panel
Stav: Dobrý
Vlastnictví: Osobní
Umístění: Dobrý
Obytná plocha: 63 m2
Lodžie: 2m2
Užitná plocha: 63 m2
Plocha sklepa: 2 m2
Energetická náročnost budovy:
B - Velmi úsporná
 
 

 

Bleskový dotaz makléři

K prodeji, Byt 3+kk, 63 m2, Moravský Beroun, gen. Svobody

Text dotazu *
Váš telefon *
Váš e-mail
Zobrazit kontaktní informace
Odeslat
 
 
 
 

Ve schránce je 0 inzerátů.

zobrazit celou schránku
 
 

Nalezli jsme dalších 9 nemovitostí v podobné ceně.

 
 
reklama