K prodeji, Byt 3+kk, 177 m2, Brno, Chudčická

 
 
 
Lokalita:
Brno, Chudčická
 
 
Cena:
10 500 000 Kč / za nemovitost
 
neplatíte provizi, včetně právního servisu
 
uvedená cena je: včetně právního servisu Nabídněte prodejci Vaši cenu 
 
 

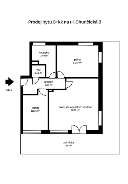
Nabízíme k prodeji moderní přízemní byt 3+kk o celkové výměře 177 m² s bezbariérovým přístupem (včetně venkovního prostoru) v žádané lokalitě Brno–Kamechy, na ulici Chudčická. Byt má příjemnou dispozici, a to díky přímému vstupu z prostorného obývacího pokoje do oploceného venkovního prostoru o velikosti 98 m². Tento soukromý prostor vybízí k realizaci vašich snů o okrasné zahrádce, ve které můžete relaxovat nebo aktivně trávit čas s rodinou. Výhodou je vybudované částečné zastřešení. Samotný byt má 78,3 m², přičemž do každé místnosti je samostatný vstup z předsíně, což zajišťuje soukromí všem obyvatelům bytu. Toaleta je oddělena od koupelny a její součástí je bidet a také umyvadlo se skříňkou. Byt je vytápěn dálkovým zdrojem tepla a celý dům je zařazen do energetické třídy C. K bytu náleží také sklep o výměře 1,25 m² ve společných částech domu. Parkování je možné v okolí domu nebo na přilehlých parkovištích zřízených pro tuto lokalitu. Lokalita Kamechy patří mezi vyhledávané a nejzelenější části města Brna. Nachází se mezi Žebětínem a Bystrcí, v těsné blízkosti brněnské přehrady, která láká k procházkám, sportu i odpočinku. Okolí domu nabízí několik dětských hřišť, přímo u sídliště najdete mateřskou školu, základní škola s velkým sportovním areálem je odtud pouhých 5 minut autobusem. Tento byt je skvělou volbou pro rodiny s dětmi i páry, kteří si chtějí po práci užívat sportovních aktivit nebo procházek.

 
zobrazit více
 
 
 


Doplňující informace:

ID inzerátu ESO: 4364040
Inzerát vydán: 13.10.2025
Inzerát aktualizován: 28.01.2026
Budova je z: Cihla
Stav: Velmi dobrý
Vlastnictví: Osobní
Umístění: Velmi dobrý
Obytná plocha: 177 m2
Terasa: 43m2
Užitná plocha: 80 m2
Podlahová plocha: 177 m2
Plocha sklepa: 1 m2
Plocha zahrady: 98 m2
Energetická náročnost budovy:
C - Úsporná
 
 

 

Bleskový dotaz makléři

K prodeji, Byt 3+kk, 177 m2, Brno, Chudčická

Text dotazu *
Váš telefon *
Váš e-mail
Zobrazit kontaktní informace
Odeslat
 
 
 
 

Ve schránce je 0 inzerátů.

zobrazit celou schránku
 
 

Nalezli jsme dalších 92 nemovitostí v podobné ceně.

 
 
reklama