K prodeji, Byt 2+kk, 68 m2, Brno, Spolková

 
 
 
Lokalita:
Brno, Spolková
 
 
Cena:
7 400 000 Kč / za nemovitost
 
 
Nabídněte prodejci Vaši cenu 
 
 

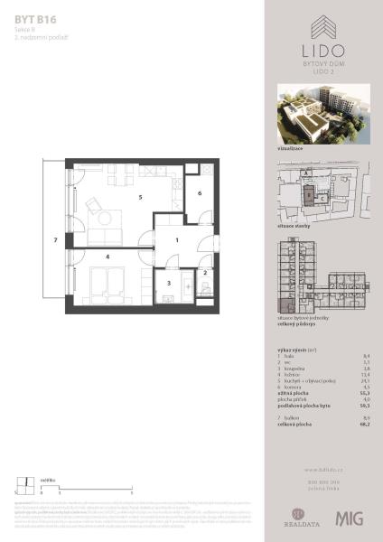
Ve výhradním zastoupení investora nabízíme k prodeji jeden z posledních volných bytů 2+kk,s komorou v již dokončeném projektu BD LIDO – oceněném titulem Projekt Jihomoravského kraje 2024. Dispozičně výborně řešený a prostorný byt splní vysoké nároky na klidné a komfortní bydlení a představuje skvělou příležitost pro startovací bydlení nebo výhodnou investici. Projekt BD LIDO navazuje na velmi úspěšnou první etapu a je již kompletně dokončen a zkolaudován. Bytová jednotka se skládá ze vstupní haly, prostorného obývacího pokoje s kuchyňským koutem, ložnice, koupelny a samostatného WC. Praktickou součástí bytu je také komora s prostorem na pračku. Díky promyšlené dispozici poskytuje maximální komfort a efektivní využití prostoru. Díky západní orientaci nabízí dostatek přirozeného světla. Projekt BD LIDO je navržen s důrazem na kvalitní bydlení a úsporný provoz. Díky nadstandardnímu zateplení, moderním technologiím vytápění a použití prvotřídních stavebních materiálů splňuje energetickou třídu A, což zajišťuje nízké provozní náklady. Součástí komplexu je uzavřený vnitroblok. Každý z bytů má přístup na prostornou společnou terasu a projekt se pyšní zelenými střechami, které přispívají k příjemnému mikroklimatu a estetice celého areálu. V nabídce jsou i další typy bytů, které vám rádi představíme na osobní prohlídce. Ke každé jednotce je možnost dokoupení parkovacího stání. Nechte se okouzlit tímto jedinečným projektem a najděte svůj nový domov právě zde! Užitná plocha: 55,3 m² Podlahová plocha bytu: 59,3 m² Dispozice bytu: hala (8,4 m²), obývací pokoj s kuchyňským koutem (24,1 m²), ložnice (13,4 m²), koupelna (3,8 m²), WC (1,1 m²), komora (4,5 m²), balkon (8,9) m²

 
zobrazit více
 
 
 


Doplňující informace:

ID inzerátu ESO: 4062824
Inzerát vydán: 21.07.2022
Inzerát aktualizován: 24.04.2026
Budova je z: Cihla
Stav: Ve výstavbě (nezkolaudováno)
Vlastnictví: Osobní
Umístění: Ve výstavbě (nezkolaudováno)
Obytná plocha: 68 m2
Balkón: 9m2
Užitná plocha: 59 m2
Podlahová plocha: 68 m2
Energetická náročnost budovy:
A - Mimořádně úsporná
 
 

 

Bleskový dotaz makléři

K prodeji, Byt 2+kk, 68 m2, Brno, Spolková

Text dotazu *
Váš telefon *
Váš e-mail
Zobrazit kontaktní informace
Odeslat
 
 
 
 

Ve schránce je 0 inzerátů.

zobrazit celou schránku
 
 

Nalezli jsme dalších 113 nemovitostí v podobné ceně.

 
 
reklama