K prodeji, Novostavba: Byt 2+kk, 63 m2, Zbraslav, Masarykova

 
 
 
Lokalita:
Zbraslav, Masarykova
 
 
Cena:
4 850 000 Kč / za nemovitost
 
 
uvedená cena je: včetně provize Nabídněte prodejci Vaši cenu 
 
 

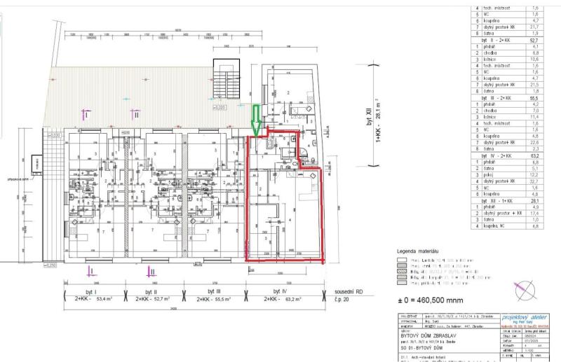
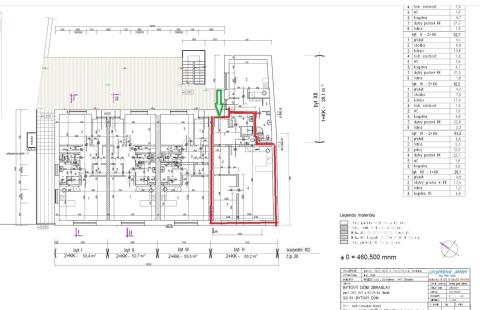
Byt 2+kk ve Zbraslavi u Brna! Nabízíme k prodeji byt 2+kk o výměře 63,2 m2, v moderní novostavbě ve Zbraslavi u Brna. Ke každému bytu náleží sklepní kóje a je zde možnost dokoupit vlastní parkovací stání přímo v areálu rezidence vybavené přípravou na nabíjecí stanici pro elektromobil. Výstavba projektu probíhá dle harmonogramu – aktuálně je bytový dům zastřešen, okna jsou osazena a dokončují se vnitřní omítky. Kolaudace je plánována na jaro 2026, předání bytu bude včetně finálních povrchů podlah, interiérových dveří, sanitárního vybavení a přípravy na kuchyňskou linku. Ještě posledních pár týdnů máte možnost výběru dekorů z kvalitních standardů. K dispozici je ještě i poslední bytová jednotka 2+kk o výměře 54,6 m2. Dům spadá do energeticky úsporné třídy B – bude zde kvalitní zateplení střechy minerální vlnou, okna s izolačními trojskly, venkovní žaluzie, fotovoltaické solární panely na střeše apod. To vše zaručuje velmi nízké provozní náklady. Jako příjemný bonus je pro rezidenty zajištěna možnost pronájmu zahrádky v blízké obecní zahrádkářské kolonii. Bytový dům se nachází přímo v centru obce, v pěší dostupnosti obecního úřadu, pošty, lékárny, mateřské i základní školy. V obci dále najdete praktického lékaře, zubaře, obchody, restauraci, kulturní dům, knihovnu a další občanskou vybavenost. Zastávka autobusu je jen 50 metrů od domu, cyklostezka cca 150 metrů. Výborná dostupnost na dálnici D1 zajišťuje rychlé spojení s Brnem i okolím. Tento architektonicky zdařilý projekt přináší ideální spojení klidného bydlení, výborné dostupnosti a moderního standardu za velmi příznivou cenu. Pro více informací kontaktujte realitní makléřku. Ráda vám poskytne podrobné informace i nabídne možnost výhodného financování s naší odbornou hypoteční specialistkou.

 
zobrazit více
 
 
 


Doplňující informace:

ID inzerátu ESO: 4369100
Inzerát vydán: 11.11.2025
Inzerát aktualizován: 03.12.2025
ID zakázky v RK: 7291720
Budova je z: Cihla
Stav: Nerozhoduje
Vlastnictví: Osobní
Umístění: Nerozhoduje
Zařízení bytu: Nezařízený
Obytná plocha: 63 m2
Bytové jádro: Zděné
Plyn: Zaveden
Voda: Vodovod
Parkování: Venkovní stání
Užitná plocha: 63 m2
Podlahová plocha: 63 m2
Energetická náročnost budovy:
B - Velmi úsporná
 
 

 

Bleskový dotaz makléři

K prodeji, Novostavba: Byt 2+kk, 63 m2, Zbraslav, Masarykova

Text dotazu *
Váš telefon *
Váš e-mail
Zobrazit kontaktní informace
Odeslat
 
 
 
 

Ve schránce je 0 inzerátů.

zobrazit celou schránku
 
 

Nalezli jsme dalších 26 nemovitostí v podobné ceně.

 
 
reklama