K prodeji, Byt 2+1, 54 m2, Plzeň, Úslavská

 
 
 
exkluzivně
 
Lokalita:
Plzeň, Úslavská
 
 
Cena:
4 440 000 Kč / za nemovitost
 
 
Nabídněte prodejci Vaši cenu 
 
 

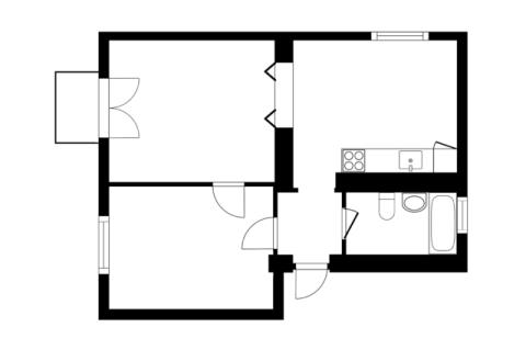
K prodeji nabízíme byt o dispozici 2+1 (48 m2) s balkonem (2 m2) nedaleko centra města v Plzni na Slovanech, ulice Úslavská. Bytová jednotka je umístěna ve 3. patře (4. nadzemním podlaží) cihlového domu a její dispozice zahrnuje obývací pokoj, ložnici, kuchyň, předsíň a koupelnu s toaletou. K bytu náleží sklepní kóje (4 m2) v suterénu domu. Byt prošel částečnou rekonstrukcí, při které byla osazena plastová okna s vnitřními žaluziemi, převážně vyměněny rozvody elektřiny, kompletně vyměněny rozvody vody, položeny nové podlahové krytiny a instalovány nové interiérové dveře. Součástí úprav byla také rekonstrukce koupelny, která zahrnovala nové obklady, dlažbu i sanitární keramiku. Vytápění bytu je centrální (Plzeňská teplárenská), vodu ohřívá plynová karma umístěná v koupelně. Na vše jsou samostatná měřidla. Byt zůstává zařízený kuchyňskou linkou včetně elektrického sporáku. Lokalita nabízí kompletní občanskou vybavenost i výbornou dopravní dostupnost. Supermarket Albert je vzdálen jen 3 minuty chůze od domu. V blízkosti se nachází také zastávka tramvajové linky č. 2 a trolejbusové linky č. 12. Konečná cena včetně provize RK, kompletního právního servisu a advokátní úschovy kupní ceny činí 4.440.000 Kč. Pro bližší informace či domluvení prohlídky volejte na uvedený mobilní telefon. Pro zjištění rozměrů místností a objektů v prostoru využijte možnost měření ve virtuální prohlídce pomocí ikony pravítka v levém dolním rohu.

 
zobrazit více
 
 
 


Doplňující informace:

ID inzerátu ESO: 4388754
Inzerát vydán: 07.03.2026
Inzerát aktualizován: 08.04.2026
ID zakázky v RK: 1190
Budova je z: Cihla
Stav: Po rekonstrukci
Vlastnictví: Osobní
Umístění: Po rekonstrukci
Obytná plocha: 54 m2
Balkón: 2m2
Užitná plocha: 48 m2
Podlahová plocha: 54 m2
Plocha sklepa: 4 m2
Energetická náročnost budovy:
E - Nehospodárná
 
 

 

Bleskový dotaz makléři

K prodeji, Byt 2+1, 54 m2, Plzeň, Úslavská

Text dotazu *
Váš telefon *
Váš e-mail
Zobrazit kontaktní informace
Odeslat
 
 
 
 

Ve schránce je 0 inzerátů.

zobrazit celou schránku
 
 

Nalezli jsme dalších 65 nemovitostí v podobné ceně.

 
 
reklama