K prodeji, Byt 1+kk, 36 m2, České Budějovice, Rudolfovská tř.

 
 
 
exkluzivně
 
Lokalita:
České Budějovice, Rudolfovská tř.
 
 
Cena:
3 450 000 Kč / za nemovitost
 
včetně služeb RK a právního servisu
 
Nabídněte prodejci Vaši cenu 
 
 

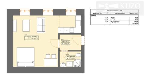
Investiční byt 1+kk 35,84 m² v nové cihlové rezidenci! Prodej bytů v novém komorním projektu. Nabízíme vám jedinečnou příležitost být mezi prvními a zajistit si tak investici s vysokým potenciálem zhodnocení ještě před dokončením stavby. Výstavba je v plném proudu a předpokládaný termín dokončení je stanoven na konec dubna 2026 (v případě, že nenastanou nepředvídatelné komplikace). Pro koho je projekt ideální? • Pro investory: Dispozice 1+kk je na trhu s pronájmy dlouhodobě nejžádanější. Získáte tak nemovitost, která si na sebe dokáže efektivně vydělávat. • Pro jednotlivce a páry: Perfektní startovací bydlení s nízkými provozními náklady v novostavbě. • Pro seniory: Umístění ve zvýšeném přízemí zajišťuje pohodlný a téměř bezbariérový přístup. Úvodní nabídka bytů k prodeji: Buďte první, kdo si vybere byt, který nejlépe odpovídá vašim představám a investičnímu záměru: • Byt o výměře 35,84 m² – cena 3.450.000 Kč Všechny ceny jsou konečné a zahrnují kompletní právní servis i provizi RK. 30% ceny platba po rezervaci, 70% po podpisu Kupní smlouvy (lze individuálně domluvit podmínky). Klíčové parametry projektu: • Konstrukce: Poctivý cihlový dům zaručující skvělé tepelně-izolační vlastnosti a dlouhou životnost. • Parkování: Aktuálně se řeší možnost parkování 5 míst u domu na soukromém parkovišti, prodej samostatně dle dohody, platí do vyprodání volných míst. • PENB: Energetická náročnost budovy: Třída C – Úsporná. Lokalita, která má vše: Byty se nachází ve strategicky výhodné lokalitě, která kombinuje klid s perfektní dostupností. • Centrum obce: Pouhých 500 metrů, tedy pár minut chůze. • Dopravní dostupnost: Vlakové nádraží vzdálené jen 400 metrů. Proč investovat právě teď? Koupě nemovitosti v úvodní fázi prodeje s sebou přináší nejlepší výběr a jistotu zhodnocení investice ihned po kolaudaci. Buďte o krok napřed. Získejte kompletní informace: Zaujala Vás tato nabídka? Pro bližší informace, detailní podklady k projektu a domluvení osobní schůzky neváhejte kontaktovat naši realitní kancelář. Domluvte si schůzku a buďte mezi prvními, kdo si vybere nejlepší byt pro své plány! ________________________________________ Upozornění: Fotografie označené hvězdičkou (*) v pravém dolním rohu jsou vizualizovány pomocí umělé inteligence a slouží pouze pro ilustraci možného budoucího stavu.

 
zobrazit více
 
 
 


Doplňující informace:

ID inzerátu ESO: 4366021
Inzerát vydán: 23.10.2025
Inzerát aktualizován: 18.02.2026
ID zakázky v RK: 22012
Budova je z: Smíšená
Stav: Ve výstavbě (nezkolaudováno)
Vlastnictví: Osobní
Umístění: Ve výstavbě (nezkolaudováno)
Obytná plocha: 36 m2
Užitná plocha: 36 m2
Podlahová plocha: 36 m2
Zastavěná plocha: 216 m2
Energetická náročnost budovy:
C - Úsporná
 
 

 

Bleskový dotaz makléři

K prodeji, Byt 1+kk, 36 m2, České Budějovice, Rudolfovská tř.

Text dotazu *
Váš telefon *
Váš e-mail
Zobrazit kontaktní informace
Odeslat
 
 
 
 

Ve schránce je 0 inzerátů.

zobrazit celou schránku
 
 

Nalezli jsme dalších 21 nemovitostí v podobné ceně.

 
 
reklama