K pronájmu, Obchody, 221 m2, Brno, Riegrova

 
 
 
Lokalita:
Brno, Riegrova
 
 
Cena:
59 000 Kč / za nemovitost
 
plus energie, které si na sebe přepíše nájemce + provize RK
 
uvedená cena je: bez provize Nabídněte prodejci Vaši cenu 
 
 

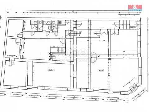
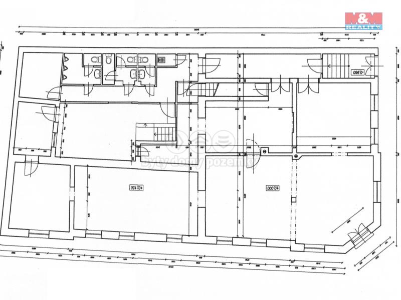
Nabízíme k pronájmu prostorný obchodní prostor o celkové výměře 282 m2, který byl dříve využíván jako restaurace. Nachází se v přízemí budovy v oblíbené a hustě obydlené lokalitě Brno - Královo Pole s dobrou dopravní dostupností. V blízkosti se nachází zastávky MHD i vlaková stanice. Dispozice prostor: hlavní obchodní/restaurační plocha 221m2, technický vstup a dvorek 25,6m2, sklepní prostory 36m2 (ideální na uskladnění piva, zeleniny či jiných zásob). Prostor je vybaven zařízenou kuchyní s gastro vybavením- velkokuchyňský plynový sporák s elektrickou troubou, grilovací plynová deska, elektrická fritéza, kombinované chladničky, mycí nerezový stůl, kovový kuchyňský nábytek. V případě zájmu možno využít zařízení s nábytkem (stoly, židle). Ve vnitrobloku je možnost zřízení zahrádky pro klienty. Prostor je vhodný pro gastronomické využití, obchodní využití, popřípadě pro provoz služeb. Energie si nájemce převádí na sebe.

 
zobrazit více
 
 
 


Doplňující informace:

ID inzerátu ESO: 4343203
Inzerát vydán: 01.07.2025
Inzerát aktualizován: 01.09.2025
ID zakázky v RK: 900913172
Budova je z: Cihla
Stav: Dobrý
Vlastnictví: Osobní
Umístění: Dobrý
Nebytová plocha: 221 m2
Užitná plocha: 221 m2
Energetická náročnost budovy:
G - Mimořádně nehospodárná
 
 

 

Bleskový dotaz makléři

K pronájmu, Obchody, 221 m2, Brno, Riegrova

Text dotazu *
Váš telefon *
Váš e-mail
Zobrazit kontaktní informace
Odeslat
 
 
 
 

Ve schránce je 0 inzerátů.

zobrazit celou schránku
 
 

Nalezli jsme dalších 33 nemovitostí v podobné ceně.

 
 
reklama