K pronájmu, Rodinný dům, Opatovice, Sportovní

 
 
 
Lokalita:
Opatovice, Sportovní
 
 
Cena:
14 500 Kč / za nemovitost
 
elektřina a plyn přepis na nájemce, cca 5 000, - Kč, stočné se platí jednou ročně, cca 5 800, - Kč
 
Nabídněte prodejci Vaši cenu 
 
 

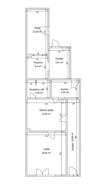
Nabízíme k pronájmu částečně zařízený rodinný dům s dispozicí 4+1 v Opatovicích. Celková plocha činí 157 m² a součástí je malý uzavřený dvorek. Dispozice: Chodba, obývací pokoj, ze kterého je vstup do koupelny se sprchovým koutem a toaletou, a dále do ložnice. Z chodby je vstup do kuchyně, do pracovny a do dalšího pokoje. Z chodby je také vstup na uzavřený dvorek, který poskytuje absolutní soukromí, a k dispozici je rovněž komora. Dům se pronajímá částečně zařízený. Obec Opatovice se nachází 14 km jižně od Brna a má dobrou občanskou vybavenost. Nachází se zde mateřská škola, základní škola, restaurace, obchod, kozí farma a další. Dopravní dostupnost do Brna je zajištěna IDS, dojezd autem je přibližně 15 minut.

 
zobrazit více
 
 
 


Doplňující informace:

ID inzerátu ESO: 4371408
Inzerát vydán: 24.11.2025
Inzerát aktualizován: 26.11.2025
ID zakázky v RK: 00050
Budova je z: Cihla
Stav: Dobrý
Umístění: Dobrý
Plocha pozemku: 157 m2
Užitná plocha: 76 m2
Podlahová plocha: 76 m2
Energetická náročnost budovy:
G - Mimořádně nehospodárná
 
 

 

Bleskový dotaz makléři

K pronájmu, Rodinný dům, Opatovice, Sportovní

Text dotazu *
Váš telefon *
Váš e-mail
Zobrazit kontaktní informace
Odeslat
 
 
 
 

Ve schránce je 0 inzerátů.

zobrazit celou schránku
 
 
reklama