K pronájmu, Rodinný dům, Buštěhrad, Ořešín

 
 
 
exkluzivně
 
Lokalita:
Buštěhrad, Ořešín
 
 
Cena:
35 000 Kč / za nemovitost
 
 
Nabídněte prodejci Vaši cenu 
 
 

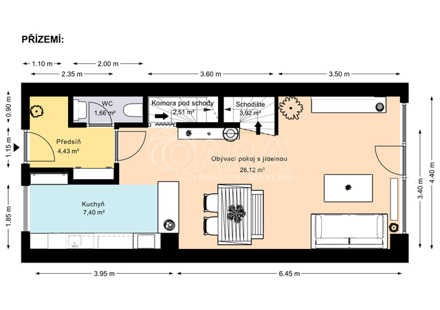
Pokud hledáte k pronájmu klidný a moderní dům se zahradou v dosahu veškerého komfortu velkoměsta, pak jste tu správně. Jedná se o řadový dům 3 + kk postavený v klidné nové čtvrti Buštěhrad – Ořešín. K domu patří dvě bezplatná parkovací stání. Přes zádveří se vstupuje do obývacího pokoje s výhledem do zahrady. Tento prostor je neskutečným bonusem celého domu, zahrada poskytuje Vašemu životu velký komfort. Pokračováním obývacího pokoje a neoficiální čtvrtou místností domu je vyhřívaná terasa, kde můžete trávit spoustu krásných večerů i v chladnějších měsících. Výhodou celého pozemku je i jeho propojení s okolím. Ze zahrady máte totiž přístup zadní brankou ven přímo do parku s nedalekým dětským hřištěm. Součástí přízemí je plně vybavený kuchyňský kout, samostatná toaleta a úložný prostor. Z obývacího pokoje v přízemí se po schodišti dostanete do podkroví, kde se nachází dva samostatné pokoje, koupelna se sprchovým koutem, vanou i WC a šikovně vyřešený pracovní kout na galerii nad schodištěm. Dům je vytápěný kondenzačním kotlem Protherm, v domě je klimatizace, voda je upravována změkčovačem vody a internetové spojení je zajišťováno místní firmou. Dům se pronajímá částečně zařízený – kuchyňská linka s vybavením, jídelní stůl se židlemi, gauč, postel, komody, vestavěné skříně, televizní stěna včetně velké TV. Vše moderní a funkční. Celý dům je nesmírně kompaktní s chytrým využitím úložných prostor a splňuje veškeré požadavky na moderní bydlení. Pro majitele hledám spolehlivého dlouhodobého nájemce. Odběr elektřiny a plynu přihlásím přímo na vás, abyste měli kontrolu nad vlastní spotřebou, vodné a stočné zůstává převedeno na majitele. Poplatky za vodné a stočné jsou 1.830 Kč měsíčně, za odvoz odpadu 1.100 Kč ročně. Poplatky za elektřinu 4 300 Kč a za plyn 1 500 Kč při provozu rodiny s dětmi a při práci z domova. Celková vstupní platba se skládá z nájemného na první měsíc ve výši 35 000 Kč + 2 vratné měsíční kauce ve výši 70 000 Kč + provize makléře ve výši 20 000 Kč. Pokud potřebujete více informací o lokalitě, nebo chcete dům navštívit, abyste zjistili, jak se vám v něm bude žít, ráda se s vámi setkám na prohlídce.

 
zobrazit více
 
 
 


Doplňující informace:

ID inzerátu ESO: 4371005
Inzerát vydán: 21.11.2025
Inzerát aktualizován: 21.01.2026
ID zakázky v RK: 18031
Budova je z: Cihla
Stav: Velmi dobrý
Umístění: Velmi dobrý
Plocha pozemku: 146 m2
Užitná plocha: 106 m2
Podlahová plocha: 106 m2
Plocha zahrady: 71 m2
Zastavěná plocha: 56 m2
Energetická náročnost budovy:
G - Mimořádně nehospodárná
 
 

 

Bleskový dotaz makléři

K pronájmu, Rodinný dům, Buštěhrad, Ořešín

Text dotazu *
Váš telefon *
Váš e-mail
Zobrazit kontaktní informace
Odeslat
 
 
 
 

Ve schránce je 0 inzerátů.

zobrazit celou schránku
 
 

Nalezli jsme dalších 4 nemovitostí v podobné ceně.

 
 
reklama