K pronájmu, Byt 6+1, 268 m2, Praha 3, Cimburkova

 
 
 
Lokalita:
Praha 3, Cimburkova
 
 
Cena:
65 000 Kč / za nemovitost
 
Včetně poplatků. Energie dle spotřeby. Zdarma kryté parkovací stání., + provize RK
 
uvedená cena je: bez provize Nabídněte prodejci Vaši cenu 
 
 

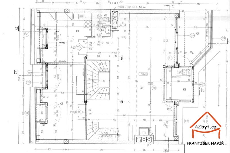
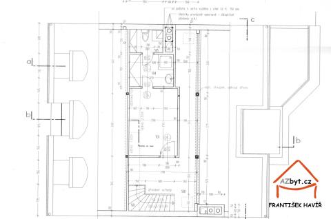
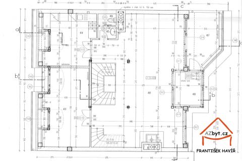
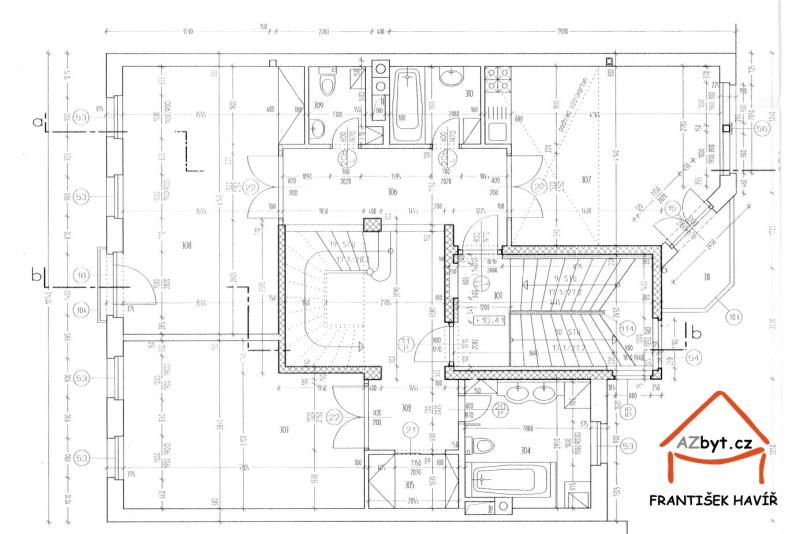
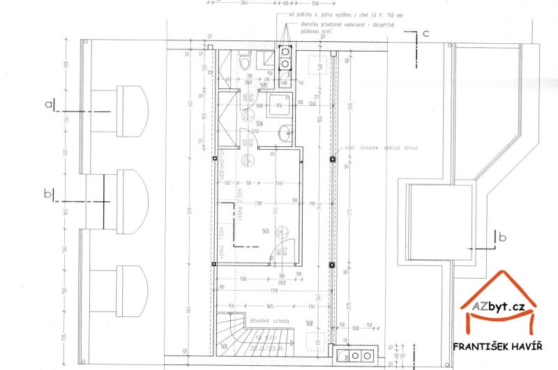
Nabízím k dlouhodobému pronájmu pěkný mezonetový byt o užitné ploše cca 268 m2 (dvě podlaží + galerie), který se nachází ve 3. a 4. patře cihlového domu, 5 minut od centra města. (Ve třetím patře je možné oddělit samostatný byt 2+kk, cca 50 m2 a pronajmout mezonet o ploše cca 218 m2 za 45 000 Kč měsíčně včetně poplatků + energie dle spotřeby.) Byt se zimní zahradou a terasou s panoramatickým výhledem (Pražský hrad, Vítkov) je kompletně zařízen (fotografie) včetně nově vybavené kuchyně a nových matrací. Dolní podlaží tvoří tři pokoje (20+20+22 m2), 2x koupelna, 2x toaleta, šatna, balkon, technická místnost, předsíň a schodiště. Horní podlaží se skládá z prostorného obývacího pokoje (57 m2) s krbem, zimní zahrady, terasy, kuchyně, pracovny a toalety. Vstup po dřevěném schodišti na galerii s pokojem, koupelnou a toaletou. Dispozice na přiložených půdorysech. Vytápění bytu a ohřev vody zajišťují tři plynové kotle, v technické místnosti automatická pračka. Na podlahách parkety a dlažba. Možnost internetu. Prostory jsou kolaudované jako byt, ale lze je využít pro sídlo firmy včetně bydlení apod. (ne ke krátkodobým pronájmům). Zdarma kryté parkovací stání ve dvoře domu. V domě není výtah. Preferujeme nájemce bez zvířat. Prostory budou připraveny k pronájmu počátkem února 2026. (Průkaz energetické náročnosti budovy zatím nebyl dodán, dle zákona proto uvádím energetickou třídu G.)

 
zobrazit více
 
 
 


Doplňující informace:

ID inzerátu ESO: 4366418
Inzerát vydán: 26.10.2025
Inzerát aktualizován: 15.11.2025
Budova je z: Cihla
Stav: Velmi dobrý
Vlastnictví: Osobní
Umístění: Velmi dobrý
Obytná plocha: 268 m2
Balkón: ANO
Terasa: ANO
Užitná plocha: 268 m2
Energetická náročnost budovy:
G - Mimořádně nehospodárná
 
 

 

Bleskový dotaz makléři

K pronájmu, Byt 6+1, 268 m2, Praha 3, Cimburkova

Text dotazu *
Váš telefon *
Váš e-mail
Zobrazit kontaktní informace
Odeslat
 
 
 
 

Ve schránce je 0 inzerátů.

zobrazit celou schránku
 
 

Nalezli jsme dalších 1 nemovitostí v podobné ceně.

 
 
reklama