K pronájmu, Byt 4+kk, 95 m2, Praha 10, U lipové aleje

 
 
 
Lokalita:
Praha 10, U lipové aleje
 
 
Cena:
32 900 Kč / za nemovitost
 
vratná jistota, náklady na bydlení 5.135,-Kč, poplatek za podnájem
 
Nabídněte prodejci Vaši cenu 
 
 

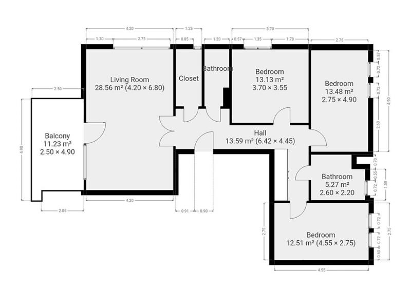
K dlouhodobému podnájmu Vám nabízíme velmi světlý, částečně zařízený byt o dispozici 4+kk, 95m2 s garážovým parkovacím stáním a terasou (11m2). Byt se nachází ve velmi klidné zástavbě rodinných domů, v pražském Dubči. Byt se nachází ve 3.NP (posledním) cihlového domu. V domě není výtah. Skládá se ze vstupní chodby zařízené velkou vestavnou šatní skříní, ložnice, dvou dětských pokojů, pracovny, koupelny zařízená vanou, umyvadlem a přípojkou na pračku, nadstandartní komory a obývacího pokoje společného s kuchyňským koutem a vstupem na terasu. Kuchyně je zařízena všemi spotřebiči - vestavná lednice, myčka, varná deska, trouba a digestoř. Byt se nabízí vybavený tak, jak vidíte na fotografií. Přímo u domu vzniká nové dětské hřiště, cca 5 minut chůze se nachází obchod Tesco Expres, základní i mateřská škola. Autobusová zastávka "Dubeček" se spojením na metro Skalka nebo Háje je od domu necelá dvě minuty chůze. Zálohové platby už obsahují zálohy na elektřinu a pojištění domácnosti. Byt je k dispozici od 1.12.2025.

 
zobrazit více
 
 
 


Doplňující informace:

ID inzerátu ESO: 4331061
Inzerát vydán: 07.05.2025
Inzerát aktualizován: 03.11.2025
ID zakázky v RK: 6226
Budova je z: Cihla
Stav: Velmi dobrý
Vlastnictví: Osobní
Umístění: Velmi dobrý
Obytná plocha: 95 m2
Balkón: ANO
Terasa: ANO
Užitná plocha: 95 m2
Podlahová plocha: 95 m2
Energetická náročnost budovy:
C - Úsporná
 
 

 

Bleskový dotaz makléři

K pronájmu, Byt 4+kk, 95 m2, Praha 10, U lipové aleje

Text dotazu *
Váš telefon *
Váš e-mail
Zobrazit kontaktní informace
Odeslat
 
 
 
 

Ve schránce je 0 inzerátů.

zobrazit celou schránku
 
 

Nalezli jsme dalších 48 nemovitostí v podobné ceně.

 
 
reklama