K pronájmu, Byt 4+kk, Strakonice, Palackého náměstí

 
 
 
Lokalita:
Strakonice, Palackého náměstí
 
 
Cena:
15 000 Kč / za nemovitost
 
 
uvedená cena je: včetně provize Nabídněte prodejci Vaši cenu 
 
 

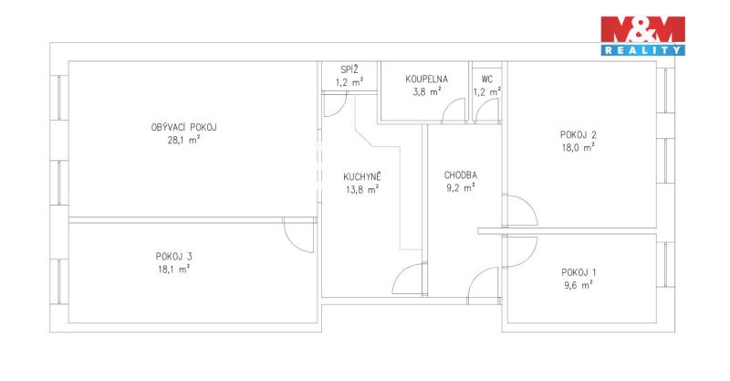
Nabízíme pronájem krásného podkrovního bytu 4+kk v centru Palackého náměstí ve Strakonicích. Byt se nachází ve 4. patře hezkého udržovaného bytového domu o celkem pěti jednotkách, který prošel v roce 2015 rekonstrukcí. Byt je částečně vybaven, je zde kompletní kuchyňská linka se spotřebiči, vestavěná trouba, lednice. Podlaha je pokryta dlažbou, plovoucí podlahou a kobercem. V koupelně je prostorná rohová vana a toaletní skříňka nad umyvadlem. Dobrá poloha domu v centru města s veškerým občanským vybavením v docházkové vzdálenosti. Nastěhování je možné od 1.2.2026. K ceně nájemného se platí 5.000,- Kč zálohově na veškeré služby. Uzavření písemné smlouvy je podmíněno složením vratné kauce ve výši jednoho měsíčního nájemného včetně poplatků a uhrazen první nájem + provize RK. Doporučujeme prohlídku!

 
zobrazit více
 
 
 


Doplňující informace:

ID inzerátu ESO: 4369616
Inzerát vydán: 12.11.2025
ID zakázky v RK: 900925111
Budova je z: Smíšená
Stav: Velmi dobrý
Vlastnictví: Osobní
Umístění: Velmi dobrý
Užitná plocha: 122 m2
Energetická náročnost budovy:
G - Mimořádně nehospodárná
 
 

 

Bleskový dotaz makléři

K pronájmu, Byt 4+kk, Strakonice, Palackého náměstí

Text dotazu *
Váš telefon *
Váš e-mail
Zobrazit kontaktní informace
Odeslat
 
 
 
 

Ve schránce je 0 inzerátů.

zobrazit celou schránku
 
 

Nalezli jsme dalších 23 nemovitostí v podobné ceně.

 
 
reklama