K pronájmu, Byt 4+kk, Ohrobec, Břežanská

 
 
 
Lokalita:
Ohrobec, Břežanská
 
 
Cena:
30 000 Kč / za nemovitost
 
Provize RK ve výši jednoho nájmu
 
uvedená cena je: včetně provize Nabídněte prodejci Vaši cenu 
 
 

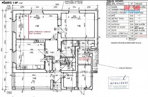
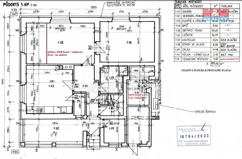
Pronájem přízemí rodinného domu o čisté podlahové ploše 87, 5 m² s možností využití zahrady 347 m². K bytu je rovněž k dispozici kolárna v samostatné místnosti 6 m². Dům je situován na slunném místě v žádané lokalitě obce Ohrobec. Nájem je vhodný pro bydlení splňující nároky moderní aktivní rodiny. V místě lze i podnikat. Podkroví je pronajímáno slušné a tiché klientele. K nájemnému si nájemník platí zálohy na spotřebu vody ve výši 1.000,- Kč a elektřiny ve výši 1.500,- Kč. Ohřev vody a vytápění jednotky zajišťuje tepelné čerpadlo. Dostatek parkovacích prostor na pozemku u domu. Dobrá dostupnost do sousedních Dolních Břežan a Prahy MHD. Občanská vybavenost v obci Ohrobec zahrnuje základní a mateřskou školu, pekárnu, samoobsluhu, několik restaurací, tenisové hřiště a jízdárnu. K dispozici je kulturní sál obecního úřadu, knihovna a v zimě se pravidelně koná bruslení na rybnících.

 
zobrazit více
 
 
 


Doplňující informace:

ID inzerátu ESO: 4354944
Inzerát vydán: 28.08.2025
Inzerát aktualizován: 01.09.2025
ID zakázky v RK: 900918527
Budova je z: Cihla
Stav: Velmi dobrý
Vlastnictví: Osobní
Umístění: Velmi dobrý
Užitná plocha: 87 m2
Energetická náročnost budovy:
C - Úsporná
 
 

 

Bleskový dotaz makléři

K pronájmu, Byt 4+kk, Ohrobec, Břežanská

Text dotazu *
Váš telefon *
Váš e-mail
Zobrazit kontaktní informace
Odeslat
 
 
 
 

Ve schránce je 0 inzerátů.

zobrazit celou schránku
 
 

Nalezli jsme dalších 10 nemovitostí v podobné ceně.

 
 
reklama