K pronájmu, Byt 3+kk, Plzeň, Resslova

 
 
 
Lokalita:
Plzeň, Resslova
 
 
Cena:
16 960 Kč / za nemovitost
 
 
uvedená cena je: včetně provize Nabídněte prodejci Vaši cenu 
 
 

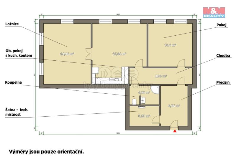
Nabízíme pronájem bytu 3+kk, ulice Resslova. Byt o velikosti 96 m2 se nachází v 2.patře udržovaného cihlového domu v jehož vnitrobloku je možné rezidenční posezení u grilu. Dům disponuje elektronickým systémem otevírání dveří a nově zbudovanou optikou. Nově rekonstruovaný a prostorný byt se pronajímá nevybavený, pouze nová kuchyňská linka se spotřebiči (sporák, elektrická trouba, digestoř, myčka, lednice) to vše prakticky sladěné do prostoru obývací části. V bytě se dále nachází velká vstupní předsíň se samostatnou technickou místností kde je plynový kotel na vytápění a ohřev vody, následuje další samostatný pokoj, koupelna s masážním sprchovým koutem, umyvadlem, toaletou a přípojkou na pračku. Ve všech pokojích jsou položené koberce. V okolí veškerá občanská dostupnost, zastávka MHD přímo u domu. K nájemnému se hradí zálohy za energie a služby (8.240,- Kč). Nájemné se hradí za aktuální měsíc. BEZ VRATNÉ KAUCE ! Provize RK ve výši 1. nájmu + DPH. Pro více informací kontaktujte makléře.

 
zobrazit více
 
 
 


Doplňující informace:

ID inzerátu ESO: 4349207
Inzerát vydán: 31.07.2025
Inzerát aktualizován: 05.08.2025
ID zakázky v RK: 900915684
Budova je z: Cihla
Stav: Velmi dobrý
Vlastnictví: Osobní
Umístění: Velmi dobrý
Užitná plocha: 96 m2
Energetická náročnost budovy:
G - Mimořádně nehospodárná
 
 

 

Bleskový dotaz makléři

K pronájmu, Byt 3+kk, Plzeň, Resslova

Text dotazu *
Váš telefon *
Váš e-mail
Zobrazit kontaktní informace
Odeslat
 
 
 
 

Ve schránce je 0 inzerátů.

zobrazit celou schránku
 
 

Nalezli jsme dalších 135 nemovitostí v podobné ceně.

 
 
reklama