K pronájmu, Byt 3+1, 120 m2, Praha 1, Havelská

 
 
 
Lokalita:
Praha 1, Havelská
 
 
Cena:
36 000 Kč / za nemovitost
 
+ 5.000 Kč poplatky
 
Nabídněte prodejci Vaši cenu 
 
 

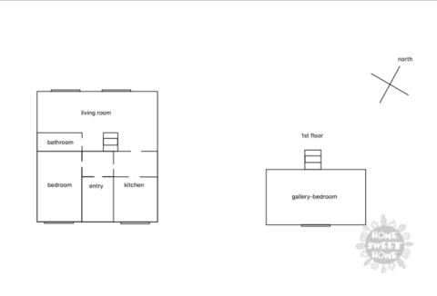
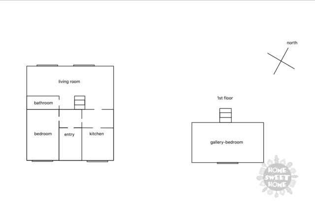
Zařízený mezonetový byt s mnoha původními prvky v atraktivní lokalitě Starého Města s okouzlujícím výhledem až na Pražský hrad. Celková výměra bytu je 120 m2. Byt se nachází v pátém patře historického domu bez výtahu. Byt 3+1 je je zcela zařízený. Byt je složen z jednoho menšího pokoje, jednoho velkého pokoje s manželskou postelí v otevřeném podkrovním patře, kuchyně a dvou koupelen a je zcela zařízený včetně vestavěné skříně, s dřevěnou podlahou a dlažbou. Kuchyň je vybavena elektrickými spotřebiči. Součástí bytu je pokoj pro hosty s vlastní koupelnou se sprchovým koutem. V jedné ze dvou koupelen je masážní vana. Dům je zabezpečen a napojen na bezpečnostní pult. Ideální umístění v centru Prahy, stanice metra Můstek je vzdálena 2. minuty chůze od domu. Pouze na dlouhodobý pronájem (min. doba pronájmu je jeden rok). Vratná kauce majiteli je v hodnotě 40.000 Kč. Byt je ihned dostupný k pronájmu.

 
zobrazit více
 
 
 


Doplňující informace:

ID inzerátu ESO: 4366903
Inzerát vydán: 30.10.2025
Inzerát aktualizován: 27.11.2025
ID zakázky v RK: 78674
Budova je z: Cihla
Stav: Velmi dobrý
Vlastnictví: Osobní
Umístění: Velmi dobrý
Obytná plocha: 120 m2
Užitná plocha: 120 m2
Podlahová plocha: 120 m2
Energetická náročnost budovy:
G - Mimořádně nehospodárná
 
 

 

Bleskový dotaz makléři

K pronájmu, Byt 3+1, 120 m2, Praha 1, Havelská

Text dotazu *
Váš telefon *
Váš e-mail
Zobrazit kontaktní informace
Odeslat
 
 
 
 

Ve schránce je 0 inzerátů.

zobrazit celou schránku
 
 

Nalezli jsme dalších 41 nemovitostí v podobné ceně.

 
 
reklama