K pronájmu, Byt 2+kk, 46 m2, Praha 1, Haštalská

 
 
 
Lokalita:
Praha 1, Haštalská
 
 
Cena:
29 000 Kč / za nemovitost
 
+ poplatky 3 000,- Kč + elektřina a plyn
 
Nabídněte prodejci Vaši cenu 
 
 

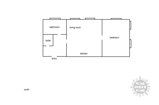
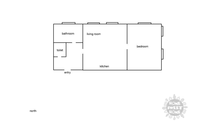
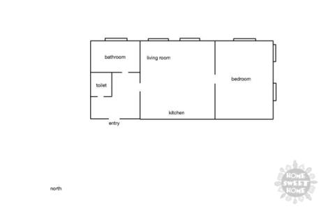
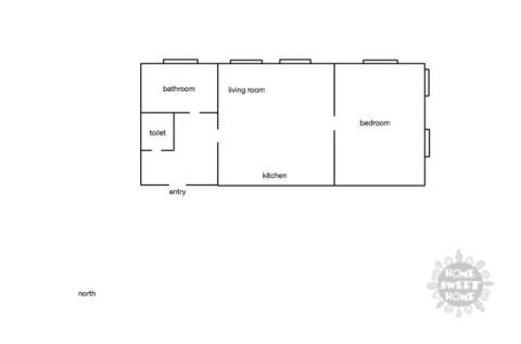
Nabízíme k dlouhodobému pronájmu jedinečný byt 2+kk o výměře 46 m², situovaný ve 2. patře pavlačového domu v klidné ulici Haštalská na Praze 1 - Staré Město. Dům, který se dříve nazýval U Modré boty, je z 15. století a patří mezi historickou památku UNESCO. Dům prošel kompletní rekonstrukcí s důrazem na zachování původních architektonických prvků. Byt je rovněž po celkové rekonstrukci. Je světlý s krásným výhledem na Staré Město. Byt je celkově zařízený. V kuchyni je sklokeramická varná deska, elektrická trouba, nádobí, myčka a lednice s mrazničkou. Elegantní koupelna s unikátní vanou. V bytě je také pračka a sušička. Toaleta je samostatně. V celém bytě jsou dřevěné parkety a dlažba, okna mají rolety. Dům se nachází v atraktivní lokalitě historického centra Prahy s vynikající občanskou vybaveností - restaurace, obchody, kavárny a jiné. Skvělá dopravní dostupnost - tramvajová zastávka "Dlouhá třída" 3 minuty chůze od domu, stanice metra "B" Náměstí republiky 5 minut chůze, kde se nachází velké obchodní centrum "Palladium". Byt je k dispozici od ledna 2026. Elektřina a plyn se převádějí na nájemce. Pro více informací kontaktujte makléře.

 
zobrazit více
 
 
 


Doplňující informace:

ID inzerátu ESO: 4370941
Inzerát vydán: 20.11.2025
Inzerát aktualizován: 24.11.2025
ID zakázky v RK: 78715
Budova je z: Cihla
Stav: Velmi dobrý
Vlastnictví: Osobní
Umístění: Velmi dobrý
Obytná plocha: 46 m2
Užitná plocha: 46 m2
Podlahová plocha: 46 m2
Energetická náročnost budovy:
B - Velmi úsporná
 
 

 

Bleskový dotaz makléři

K pronájmu, Byt 2+kk, 46 m2, Praha 1, Haštalská

Text dotazu *
Váš telefon *
Váš e-mail
Zobrazit kontaktní informace
Odeslat
 
 
 
 

Ve schránce je 0 inzerátů.

zobrazit celou schránku
 
 

Nalezli jsme dalších 38 nemovitostí v podobné ceně.

 
 
reklama