K pronájmu, Byt 2+1, 57 m2, Praha 10, Jasmínová

 
 
nový
 
Lokalita:
Praha 10, Jasmínová
 
 
Cena:
20 000 Kč / za nemovitost
 
vratná jistota, náklady na bydlení 5 200 Kč, poplatek za podnájem
 
Nabídněte prodejci Vaši cenu 
 
 

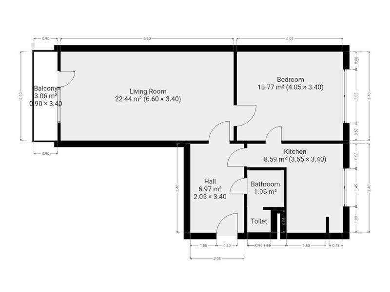
Nabízíme vám k dlouhodobému podnájmu příjemně prosvětlený byt o dispozici 2+1 a celkové výměře 56 m², situovaný v klidné a žádané lokalitě pražských Záběhlic. Byt se nachází v přízemí pečlivě udržovaného panelového domu s výtahem a jeho velkou předností je přilehlý balkon spolu s praktickou sklepní kójí pro uložení sezónních věcí. Interiér je nabízen jako částečně vybavený, což vám dává ideální prostor pro zařízení domova přesně podle vlastního vkusu a potřeb. Kuchyně disponuje veškerým nezbytným zázemím včetně lednice s mrazákem, elektrické trouby, sporáku a digestoře, přičemž nechybí ani prostor pro útulný jídelní kout. Dispozice dále zahrnuje dva samostatné neprůchozí pokoje, které nabízejí variabilní využití jako ložnici, obývací pokoj nebo klidnou pracovnu. Koupelna je osazena sprchovým koutem, umyvadlem i pračkou, zatímco toaleta je pro maximální komfort řešena samostatně. Okolí domu vyniká kompletní občanskou vybaveností, díky které máte vše důležité doslova na dosah ruky. Pár minut chůze od vchodu najdete supermarkety Tesco a Penny, poštu, lékárnu i kvalitní lékařskou péči. Volný čas můžete trávit v blízkém parku Meandry Botiče, který je oázou klidu v městské zástavbě, nebo využít širokou nabídku místních sportovišť a restaurací. Skvělou dopravní dostupnost do ostatních částí Prahy zajišťují frekventované zastávky autobusů a tramvají v bezprostřední blízkosti domu. Byt je volný k nastěhování ihned. Energetická třída: G (průkaz nedodán)

 
zobrazit více
 
 
 


Doplňující informace:

ID inzerátu ESO: 4384795
Inzerát vydán: 13.02.2026
Inzerát aktualizován: 16.02.2026
ID zakázky v RK: 7274
Budova je z: Panel
Stav: Velmi dobrý
Vlastnictví: Osobní
Umístění: Velmi dobrý
Obytná plocha: 57 m2
Balkón: ANO
Užitná plocha: 57 m2
Podlahová plocha: 57 m2
Energetická náročnost budovy:
G - Mimořádně nehospodárná
 
 

 

Bleskový dotaz makléři

K pronájmu, Byt 2+1, 57 m2, Praha 10, Jasmínová

Text dotazu *
Váš telefon *
Váš e-mail
Zobrazit kontaktní informace
Odeslat
 
 
 
 

Ve schránce je 0 inzerátů.

zobrazit celou schránku
 
 

Nalezli jsme dalších 72 nemovitostí v podobné ceně.

 
 
reklama