K pronájmu, Byt 1+kk, 41 m2, Brno, Vídeňská

 
 
nový
 
Lokalita:
Brno, Vídeňská
 
 
Cena:
16 490 Kč / za nemovitost
 
+2 900 Kč za zálohy na energie a služby, 2 000 Kč parkování +vratná kauce + provize RK
 
Nabídněte prodejci Vaši cenu 
 
 

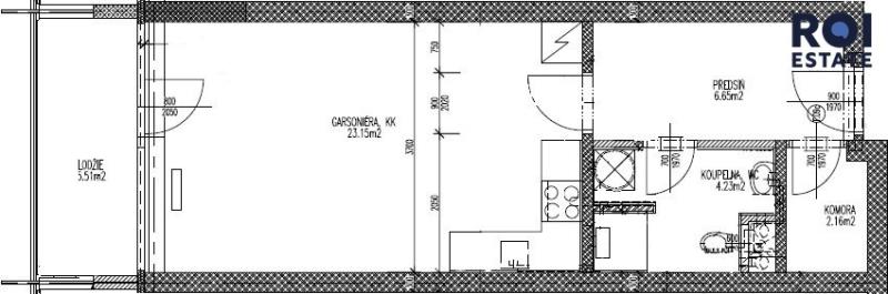
Chcete bydlet v centru města v novém bytě? Nabízíme k pronájmu světlý byt umístěný v klidnější uličce z ulice Vídeňská. Byt je orientován na Jih a nachází se ve 2. nadzemním podlaží bytového domu v těsné blízkosti nemocnice U Milosrdných Bratří a tudíž i v blízkosti veškeré občanské vybavenosti. Celková výměra bytu je 41m² a dispoziční řešení bytu je 1+kk, velkou výhodou je možnost pronájmu venkovního parkovací stání 2 000 Kč/měsíc. Z prostorné předsíně jsou zvlášť vstupy do, koupelny se sprchovým koutem a toaletou a dále do obývacího pokoje s kuchyňským koutem. Z pokoje je přístupný velký balkon. Byt se pronajímá zařízený kuchyní a vestavěnou skříní v předsíni. Předání probíhá po čerstvé výmalbě na bílo včetně kompletně uklizeného bytu. Prohlídky jsou možné po domluvě v případě zájmu o prohlídku nás neváhejte kontaktovat. Byt je k dispozici od 1.3. 2026, případně po domluvě i dříve. Vybavení bytu nemusí odpovídat zobrazenému stavu na fotografiích. Tento byt je podnajímán se službou „Váš Domácí“. Je to služba, kdy podnájemce automaticky získává: - plně pojištěný byt s non stop asistenční linkou, kdy pojištění se vztahuje navíc i na odpovědnost za škody způsobené v běžném životě, prodlouženou záruku spotřebičů o 2 roky, a nebo servisní techniky v případě pojistné události (práce zámečníka, opravy havárií). - zákaznický servis služby „Váš Domácí“ od 9:00 – 17:00 pro řešení Vašich dotazů a požadavků - technickou podporu (pro případ, že budete chtít pomoci s technickými záležitostmi na bytě) - možnost výměny bytu za větší/menší/jinde z portfolia bytů či domů Váš Domácí (Brno, Praha a další města) Podnajmout si byt nebylo nikdy snazší a efektivnější.

 
zobrazit více
 
 
 


Doplňující informace:

ID inzerátu ESO: 4373755
Inzerát vydán: 04.12.2025
ID zakázky v RK: 6315
Budova je z: Cihla
Stav: Velmi dobrý
Vlastnictví: Osobní
Umístění: Velmi dobrý
Obytná plocha: 41 m2
Terasa: 7m2
Užitná plocha: 41 m2
Energetická náročnost budovy:
B - Velmi úsporná
 
 

 

Bleskový dotaz makléři

K pronájmu, Byt 1+kk, 41 m2, Brno, Vídeňská

Text dotazu *
Váš telefon *
Váš e-mail
Zobrazit kontaktní informace
Odeslat
 
 
 
 

Ve schránce je 0 inzerátů.

zobrazit celou schránku
 
 

Nalezli jsme dalších 128 nemovitostí v podobné ceně.

 
 
reklama