K pronájmu, Byt 1+kk, 33 m2, Praha 10, Ke kříži

 
 
 
Lokalita:
Praha 10, Ke kříži
 
 
Cena:
16 000 Kč / za nemovitost
 
vratná jistota, náklady na bydlení 3.400 Kč/měsíc vč. elektřiny, poplatek za podnájem
 
Nabídněte prodejci Vaši cenu 
 
 

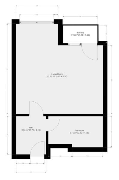
K dlouhodobému podnájmu nabízíme moderní byt o dispozici 1+kk v oblíbené lokalitě Praha - Uhříněves. Byt s rekuperací o celkové výměře 33 m2 se nachází v 5. podlaží novostavby s výtahem. K bytu patří lodžie. V rámci domu je možné využít kočárkárnu/kolárnu. V bytě doposud nikdo nebydlel, budete tak první podnájemníci. Byt se nabízí částečně vybavený. Kuchyně disponuje lednicí, myčkou, elektrickou troubou, indukční deskou, mikrovlnnou troubou a digestoří. Obývací část je vybavena jídelním stolem s židlemi a skříní. Další skříň nalezneme v předsíni, odkud se vchází do koupelny. V koupelně je vana , umyvadlo, toaleta a pračka. V okolí domu najdeme veškerou občanskou vybavenost - restaurace, supermarket Billa, lékaře, lékárnu atd. Hned u domu se nachází autobusová zastávka, odkud jezdí autobusy k metu "C" Háje a "A" Depo Hostivař. Pouhých 10 minut chůze od domu je vlakové nádraží, odkud se pohodlně dostanete do centra Prahy. Majitel preferuje zájemce bez domácích mazlíčků. Byt je volný k nastěhování od 1. 3. 2026. Byt pronajímá Ideální nájemce - služba, se kterou budete bydlet bezstarostně a za férových podmínek. Když se něco přihodí, k dispozici jsou správci, kteří s vámi vše vyřeší. Pomůžeme s veškerou administrativou, s nastavením plateb a zajistíme vám speciální pojištění. Pojďte bydlet s námi!

 
zobrazit více
 
 
 


Doplňující informace:

ID inzerátu ESO: 4121290
Inzerát vydán: 22.02.2023
Inzerát aktualizován: 10.12.2025
ID zakázky v RK: 3515
Budova je z: Smíšená
Stav: Velmi dobrý
Vlastnictví: Osobní
Umístění: Velmi dobrý
Obytná plocha: 33 m2
Balkón: ANO
Lodžie: ANO
Užitná plocha: 33 m2
Podlahová plocha: 33 m2
Energetická náročnost budovy:
B - Velmi úsporná
 
 

 

Bleskový dotaz makléři

K pronájmu, Byt 1+kk, 33 m2, Praha 10, Ke kříži

Text dotazu *
Váš telefon *
Váš e-mail
Zobrazit kontaktní informace
Odeslat
 
 
 
 

Ve schránce je 0 inzerátů.

zobrazit celou schránku
 
 

Nalezli jsme dalších 37 nemovitostí v podobné ceně.

 
 
reklama