K pronájmu, Byt 1+kk, 32 m2, Praha 10, Karla Zicha

 
 
 
exkluzivně
 
Lokalita:
Praha 10, Karla Zicha
 
 
Cena:
11 000 Kč / za nemovitost
 
+4.600,-Kč/měsíc poplatky včetně elektřiny. Kauce, provize RK.
 
Nabídněte prodejci Vaši cenu 
 
 

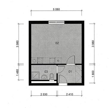
Pronájem nového bytu 1+kk/S/VPS, 30 m2, Praha - Uhříněves, Karla Zicha. Hledáte bydlení v Uhříněvsi? Stačí vám menší byt? Krásný, částečně zařízený byt 1+kk, 30 m2, v centru Uhříněvsi se nachází prvním patře novostavby z roku 2008. Kuchyňská linka je vybavena elektrickou varnou deskou, digestoří, vestavěnou elektrickou troubou, dřezem a lednicí s mrazákem. V předsíni je praktická vestavěná šatní skříň. Internetové připojení je v ceně. K bytu náleží také sklep a vyhrazené parkovací stání za závorou na dálkové ovládání. Veškerá občanská vybavenost v místě. vynikající spojení vlakem do centra Prahy. Vzhledem k velikosti je byt vhodný pro jednu osobu. Domácí neštěkající mazlíček je zde povolen. Majitel preferuje občana ČR. Dlouhodobý pronájem. K dispozici od 1.10.2025. Prohlídka je možná po domluvě.

 
zobrazit více
 
 
 


Doplňující informace:

ID inzerátu ESO: 4350726
Inzerát vydán: 06.08.2025
Inzerát aktualizován: 28.08.2025
ID zakázky v RK: 66259
Budova je z: Cihla
Stav: Velmi dobrý
Vlastnictví: Osobní
Umístění: Velmi dobrý
Obytná plocha: 32 m2
Užitná plocha: 30 m2
Podlahová plocha: 32 m2
Plocha sklepa: 2 m2
Energetická náročnost budovy:
C - Úsporná
 
 

 

Bleskový dotaz makléři

K pronájmu, Byt 1+kk, 32 m2, Praha 10, Karla Zicha

Text dotazu *
Váš telefon *
Váš e-mail
Zobrazit kontaktní informace
Odeslat
 
 
 
 

Ve schránce je 0 inzerátů.

zobrazit celou schránku
 
 

Nalezli jsme dalších 5 nemovitostí v podobné ceně.

 
 
reklama