K pronájmu, Byt 1+1, Horní Slavkov, Dlouhá

 
 
 
Lokalita:
Horní Slavkov, Dlouhá
 
 
Cena:
10 000 Kč / za nemovitost
 
 
uvedená cena je: včetně provize Nabídněte prodejci Vaši cenu 
 
 

Hledáte komfortní a prostorné bydlení v klidné lokalitě? Pak pro vás máme světlý a dobře dispozičně řešený byt 1+1, který se nachází v cihlovém domě v Horním Slavkově. O bytu: ✅ Dispozice 1+1 – ideální pro jednotlivce, pár či menší rodinu ✅ Prostorná kuchyně s dostatkem úložného prostoru ✅ Světlý obývací pokoj s možností útulného posezení ✅ Koupelna s vanou, WC je součástí ✅ Byt je ve skvělé lokalitě s veškerou občanskou vybaveností v dosahu Podmínky pronájmu: ? Nájemné: 10 000 Kč/měsíc ? Elektřina a plyn: Přepis na nájemce ? Vratná kauce: 40 000 Kč ? Provize RK Tento byt nabízí klidné a příjemné bydlení s dobrou dostupností do centra. Neváhejte mě kontaktovat a domluvte si prohlídku, než bude pryč! PROHLÍDKOVÝ DEN JE 3.3 OD 15 - 16 HODIN. Budu se na Vás těšit.

 
zobrazit více
 
 
 


Doplňující informace:

ID inzerátu ESO: 4356008
Inzerát vydán: 29.08.2025
ID zakázky v RK: 900910755
Budova je z: Cihla
Stav: Dobrý
Vlastnictví: Osobní
Umístění: Dobrý
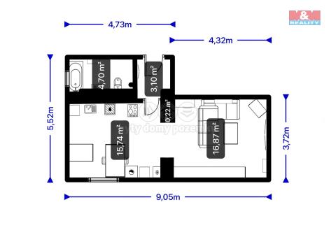
Užitná plocha: 49 m2
Energetická náročnost budovy:
G - Mimořádně nehospodárná
 
 

 

Bleskový dotaz makléři

K pronájmu, Byt 1+1, Horní Slavkov, Dlouhá

Text dotazu *
Váš telefon *
Váš e-mail
Zobrazit kontaktní informace
Odeslat
 
 
 
 

Ve schránce je 0 inzerátů.

zobrazit celou schránku
 
 

Nalezli jsme dalších 44 nemovitostí v podobné ceně.

 
 
reklama