K prodeji, pozemky - stavební / komerční, 2661 m2, Praha 8, Kobylisy

 
 
 
exkluzivně
 
Lokalita:
Praha 8, Kobylisy
 
 
Cena:
Info o ceně u RK
 
cena u makléře
 
Nabídněte prodejci Vaši cenu 
 
 

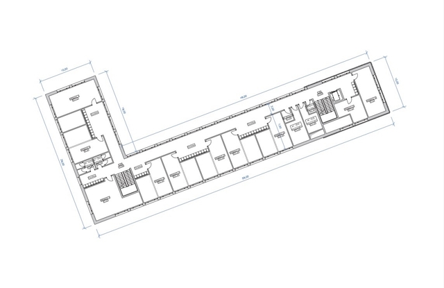
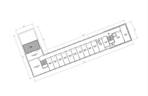
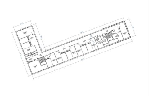
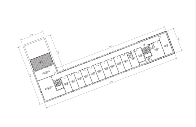
Nabízíme k prodeji atraktivní pozemek o výměře 2 661 m², nacházející se v prestižní a vyhledávané lokalitě Praha 8 – Kobylisy, v ulici Pod Sídlištěm. Místo se vyznačuje klidným rezidenčním charakterem, výbornou dopravní dostupností a kompletní občanskou vybaveností. Dle platného Územního plánu hlavního města Prahy je pozemek veden v plochách VO – všeobecně obytné a BO – čistě obytné, což umožňuje využití pro rezidenční nebo občanskou výstavbu. Jedná se tak o mimořádně zajímavou investiční příležitost v lokalitě s dlouhodobě stabilizovaným prostředím a vysokým rozvojovým potenciálem. K pozemku je zpracována urbanisticko-architektonická studie, která navrhuje moderní ambulantní zdravotnické zařízení – funkci, po níž je v této části Prahy výrazná poptávka. Studie vznikla na základě konzultací s investorem, prohlídky na místě a odborných podkladů, včetně dat z katastru nemovitostí, Geoportálu Praha, platného územního plánu, Pražských stavebních předpisů a geodetického zaměření pozemku i okolí. Návrh je plně v souladu s územně plánovací dokumentací a respektuje požadavky na využití území i charakter okolní zástavby. Architektonické a hmotové řešení je koncipováno s důrazem na harmonické začlenění do prostředí a minimalizaci vizuálního dopadu. Hlavní vstup do objektu je situován do ulice Pod Sídlištěm, návrh zachovává měřítko okolní zástavby a přispívá k celkovému zlepšení kvality prostředí. Záměr naplňuje cíle územního plánování a požadavky Pražských stavebních předpisů včetně odstupových parametrů. Dispoziční řešení je navrženo s ohledem na funkční provoz, bezbariérový přístup a jasné oddělení pohybu pacientů a personálu. V přízemí se nachází vstupní lobby s recepcí, čekárnami, toaletami a základním zázemím. Vyšší podlaží jsou určena pro odborné ordinace, vyšetřovny a administrativní prostory. Studie umožňuje flexibilní přístup podle zvoleného scénáře výstavby – varianta A počítá se dvěma nadzemními podlažími a hrubou podlažní plochou cca 1 348 m², varianta B se třemi nadzemními podlažími a plochou přibližně 2 086 m². Součástí návrhu je také promyšlené řešení dopravy a parkování. Celkem je navrženo 27 parkovacích stání (8 vázaných a 19 návštěvnických), včetně míst pro osoby s omezenou schopností pohybu a stání pro sanitní vozidla. Parkovací plochy jsou umístěny na povrchu v rámci pozemku, částečně ve formě zatravněné dlažby. Pěší komunikace jsou odděleny od automobilového provozu a navazují na stávající chodníkovou síť. Venkovní úpravy doplňuje doprovodná zeleň a příjemný nástupní prostor pro pacienty i návštěvníky. Celkové řešení podporuje přehlednou orientaci, bezpečný pohyb a plynulý provoz objektu v běžném režimu. Díky své poloze, příznivému územnímu určení, připravené projektové studii a výborné dopravní dostupnosti představuje tento pozemek výjimečnou příležitost pro realizaci kvalitního projektu – ať už zdravotnického zařízení, nebo rezidenčního objektu – v jedné z nejatraktivnějších částí Prahy 8.

 
zobrazit více
 
 
 


Doplňující informace:

ID inzerátu ESO: 4368859
Inzerát vydán: 10.11.2025
Inzerát aktualizován: 15.12.2025
ID zakázky v RK: 0460
Plocha: 2661 m2
Plocha pozemku: 2661 m2
 
 

 

Bleskový dotaz makléři

K prodeji, pozemky - stavební / komerční, 2661 m2, Praha 8, Kobylisy

Text dotazu *
Váš telefon *
Váš e-mail
Zobrazit kontaktní informace
Odeslat
 
 
 
 

Ve schránce je 0 inzerátů.

zobrazit celou schránku
 
 
reklama