K prodeji, pozemky - stavební / komerční, Varnsdorf

 
 
 
Lokalita:
Varnsdorf
 
 
Cena:
1 100 000 Kč / za nemovitost
 
 
uvedená cena je: včetně provize Nabídněte prodejci Vaši cenu 
 
 

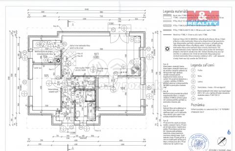
Nabízíme vám ke koupi pozemek o celkové výměře 806 m² v blízkosti centra obce Varnsdorf. K pozemku bylo před dvěma lety vydáno stavební povolení, které je momentálně propadlé, ale lze o něj znovu požádat. Součástí prodeje je také projekt na nízkoenergetický rodinný dům, který můžete v případě zájmu využít a tím ušetřit čas i finance. Využití tohoto projektu však není podmínkou koupi pozemku. K pozemku je již přivedena elektřina, je zpracován projekt na připojení vodovodu a kanalizace, dále je zde studna s užitkovou vodou a možnost připojení na plyn. Přístup na pozemek je zajištěn z obecní asfaltové komunikace. Z pozemku je výborná dostupnost do centra města, kde se nachází veškerá občanská vybavenost. Výhodou je také skvělá dostupnost do nedalekého Německa. S financováním vám rádi pomůžeme za výhodných podmínek. Nenechte si ujít tuto jedinečnou nabídku a kontaktujte makléře.

 
zobrazit více
 
 
 


Doplňující informace:

ID inzerátu ESO: 4345036
Inzerát vydán: 08.07.2025
Inzerát aktualizován: 30.08.2025
ID zakázky v RK: 900912805
Stav: Dobrý
Vlastnictví: Osobní
Umístění: Dobrý
Plocha pozemku: 806 m2
 
 

 

Bleskový dotaz makléři

K prodeji, pozemky - stavební / komerční, Varnsdorf

Text dotazu *
Váš telefon *
Váš e-mail
Zobrazit kontaktní informace
Odeslat
 
 
 
 

Ve schránce je 0 inzerátů.

zobrazit celou schránku
 
 

Nalezli jsme dalších 19 nemovitostí v podobné ceně.

 
 
reklama