K prodeji, pozemky - stavební / bydlení, 3309 m2, Praha 9, Jeřická

 
 
 
exkluzivně
 
Lokalita:
Praha 9, Jeřická
 
 
Cena:
Info o ceně u RK
 
Cena je konečná bez dalších poplatků.
 
uvedená cena je: včetně provize Nabídněte prodejci Vaši cenu 
 
 

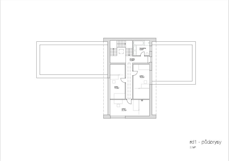
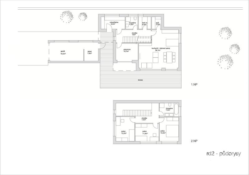
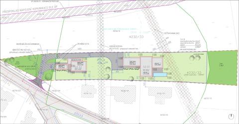
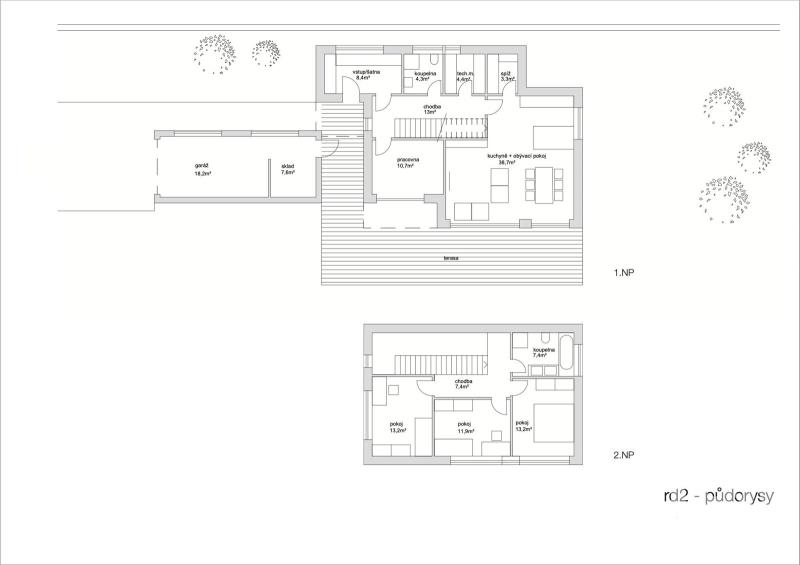
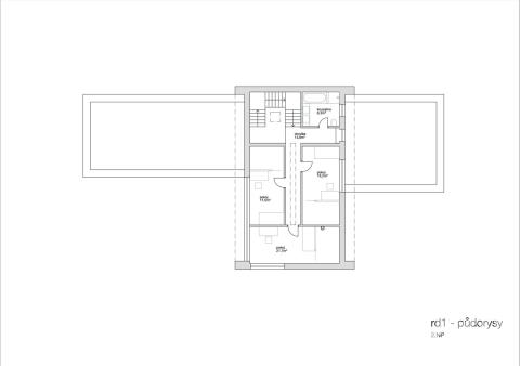
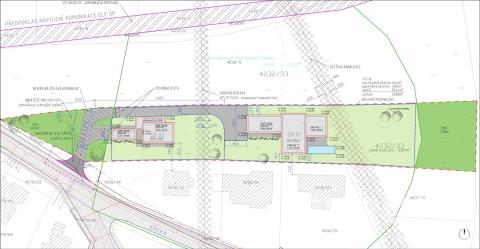
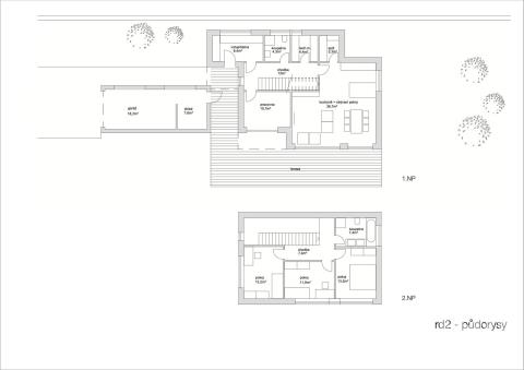
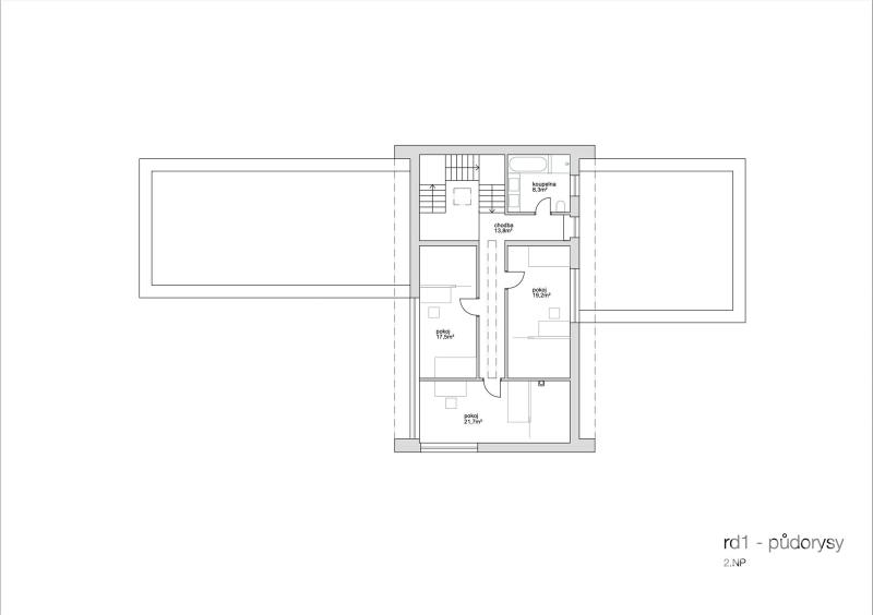
Exkluzivně nabízíme stavební pozemek s platným stavebním povolením na dvě luxusní vily. První o výměře 377 m2, druhá 225 m2. Rozmístění je znázorněno v situaci v grafické části inzerátu. Komplex nabízí unikátní příležitost pro multigenerační bydlení v nejvyšší možné míře komfortu a soukromí. Větší vila nabízí vlastní příjezdovou cestu, dvě garážová stání a venkovní parkování. Dále terasu s bazénem a rozlehlou zahradu. Menší vila nabízí jedno garážové stání a další venkovní parkování. Půdorysy obou vil jsou pouze orientační, dispozice lze pozměnit. Pozemek lze rozdělit a prodat zvlášť odpovídající část pro stavbu jedné z vil. Pro více informací kontaktujte makléře. Horní Počernice jsou velmi prestižní lokalitou pro svoji dostupnost do centra Prahy, přestože jsou na dosah přírodě. Chlubí se veškerou občanskou vybaveností včetně mateřské školy, základní školy a gymnázia. Nemovitost se navíc nachází jen pár minut autem od nákupních center na Černém Mostě. V okolí jsou různá sportoviště, cyklostezky i například golfové hřiště. V případě zájmu, nebo dalších dotazů, neváhejte kontaktovat makléře.

 
zobrazit více
 
 
 


Doplňující informace:

ID inzerátu ESO: 4367760
Inzerát vydán: 02.11.2025
Inzerát aktualizován: 20.02.2026
ID zakázky v RK: 7285030
Vlastnictví: Osobní
Plocha: 3309 m2
Plocha pozemku: 3309 m2
Plyn: Na hranici
Voda: Na hranici
 
 

 

Bleskový dotaz makléři

K prodeji, pozemky - stavební / bydlení, 3309 m2, Praha 9, Jeřická

Text dotazu *
Váš telefon *
Váš e-mail
Zobrazit kontaktní informace
Odeslat
 
 
 
 

Ve schránce je 0 inzerátů.

zobrazit celou schránku
 
 

Nalezli jsme dalších 2 nemovitostí v podobné ceně.

 
 
reklama