K prodeji, Výroba, Věžky

 
 
 
exkluzivně
 
Lokalita:
Věžky
 
 
Cena:
Info o ceně u RK
 
cena u makléře
 
Nabídněte prodejci Vaši cenu 
 
 

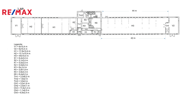
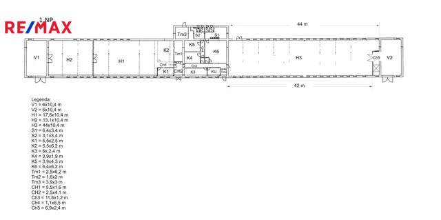
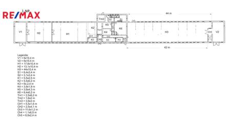
Hledáte místo pro své podnikání nebo zajímavou investici? Tato samostatně stojící komerční budova ve Věžkách nabízí široké možnosti využití – ať už pro lehkou výrobu, skladování, logistiku, dílnu, sídlo firmy nebo jako investiční příležitost k pronájmu. Nachází se v okrajové části obce s dobrou dostupností do Kroměříže, Hulína i na dálnici D1 (cca 10 minut jízdy), což z ní dělá strategické místo pro podnikatelskou činnost. Hlavní budova nabízí v 1.NP rozlohu přibližně 1152 m² a je po po rekonstrukci převážné části rozvodů elektřiny, podlah, oken a zateplení stropu. V podkroví se nachází skladové prostory bez vytápění o celkové rozloze cca 1168 m². Do podkroví vede funkční průmyslový výtah, který usnadňuje manipulaci s materiálem i zbožím. Součástí objektu jsou na obou krajních stranách stropní otvory, skrz které lze materiál/zboží snadno dodat do podkroví vysokozdvižným vozíkem. Součástí projede je i přes cestu sousedící budova, která slouží ke skladovým účelům a je celkově v původním stavu se zastavěnou plochou 95 m². Klíčové vlastnosti nemovitosti: - Robustní zděná konstrukce v dobrém technickém stavu - Přímý přístup z obecní komunikace, pohodlné parkování i pro větší vozy - Zavedena elektřina (včetně 400 V), voda, kanalizace, plyn - Možnost rozšíření nebo rekonstrukce dle potřeb nového vlastníka - Vlastní pozemek – vhodný i pro skladování, garáže nebo další výstavbu - Již zavedená nabíječka pro elektromobily Potenciál využití: ● Výrobní prostory ● Sklad/dílny/logistika ● E-shop s výdejnou ● Investiční objekt pro pronájem podnikatelům ● Kombinace komerce a kanceláří Lokalita s potenciálem: Obec Věžky leží v dojezdové vzdálenosti od Kroměříže a Zlína, s napojením na důležité dopravní tahy. Budova se nachází v klidném prostředí, ale s výbornou dostupností – ideální kombinace pro podnikání bez zbytečných kompromisů. 📞 V případě zájmu mě neváhejte kontaktovat pro více informací či prohlídku nemovitosti. Tato nemovitost čeká na nové využití – bude to právě váš projekt? Prodávající si vyhrazuje právo vybrat kupujícího na základě jím zvolených kritérií.

 
zobrazit více
 
 
 


Doplňující informace:

ID inzerátu ESO: 4351288
Inzerát vydán: 11.08.2025
Inzerát aktualizován: 30.03.2026
ID zakázky v RK: 420443
Budova je z: Cihla
Stav: Dobrý
Umístění: Dobrý
Užitná plocha: 2322 m2
Zastavěná plocha: 1342 m2
Energetická náročnost budovy:
G - Mimořádně nehospodárná
 
 

 

Bleskový dotaz makléři

K prodeji, Výroba, Věžky

Text dotazu *
Váš telefon *
Váš e-mail
Zobrazit kontaktní informace
Odeslat
 
 
 
 

Ve schránce je 0 inzerátů.

zobrazit celou schránku
 
 

Nalezli jsme dalších 2 nemovitostí v podobné ceně.

 
 
reklama