K prodeji, Restaurace, 308 m2, Chomutov, Husova

 
 
 
Lokalita:
Chomutov, Husova
 
 
Cena:
Info o ceně u RK
 
Včetně provize RK a právního servisu. V případě více zájemců může RK využít pro výběr kupujícího formu aukce.
 
uvedená cena je: včetně provize Nabídněte prodejci Vaši cenu 
 
 

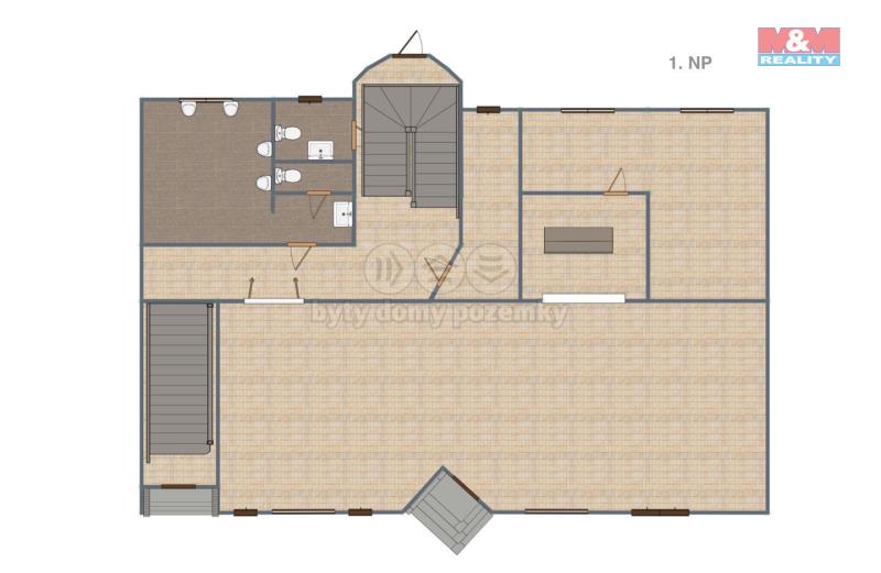
Nabízíme k prodeji prostorný dům přímo ve velmi vyhledávané a klidné části města, tzv. Horní vsi. Tento řadový dům s cihlovou konstrukcí, který byl vystavěn v roce 1922 je svou polohou a využitím velmi zajímavou nemovitostí. V přízemí se nachází roky zaběhlá pivnice. Celý dům je podsklepen a dále disponuje dvěma nadzemními podlažími. V 1. patře byla původně bytová jednotka pro velkou rodinu. Aktuálně je tento prostor předělán na restauraci s barem a parketem, která se aktuálně nevyužívá pro tento účel a jsou zde prostory kanceláří. Nicméně s novým podnikatelským záměrem a impulsem naskýtá řadu možností pro nového majitele. Zahrada je velmi prostorná, aktuálně zde najdeme i venkovní posezení k hospodě. Celková užitná plocha domu činí 308 m² a je umístěn na pozemku o rozloze 864 m². Nechte se okouzlit tímto jedinečným domem s atmosférou a domluvte si termín prohlídky. V případě zájmu Vám pomůžeme i s financováním této nemovitosti. Bližší informace Vám ráda sdělí realitní makléřka.

 
zobrazit více
 
 
 


Doplňující informace:

ID inzerátu ESO: 4360640
Inzerát vydán: 22.09.2025
ID zakázky v RK: 900919506
Budova je z: Cihla
Stav: Velmi dobrý
Vlastnictví: Osobní
Umístění: Velmi dobrý
Nebytová plocha: 308 m2
Plocha pozemku: 827 m2
Užitná plocha: 308 m2
Energetická náročnost budovy:
G - Mimořádně nehospodárná
 
 

 

Bleskový dotaz makléři

K prodeji, Restaurace, 308 m2, Chomutov, Husova

Text dotazu *
Váš telefon *
Váš e-mail
Zobrazit kontaktní informace
Odeslat
 
 
 
 

Ve schránce je 0 inzerátů.

zobrazit celou schránku
 
 

Nalezli jsme dalších 1 nemovitostí v podobné ceně.

 
 
reklama