K prodeji, Obchody, 180 m2, Kravaře, Náměstí

 
 
 
Lokalita:
Kravaře, Náměstí
 
 
Cena:
10 350 000 Kč / za nemovitost
 
 
uvedená cena je: včetně provize Nabídněte prodejci Vaši cenu 
 
 

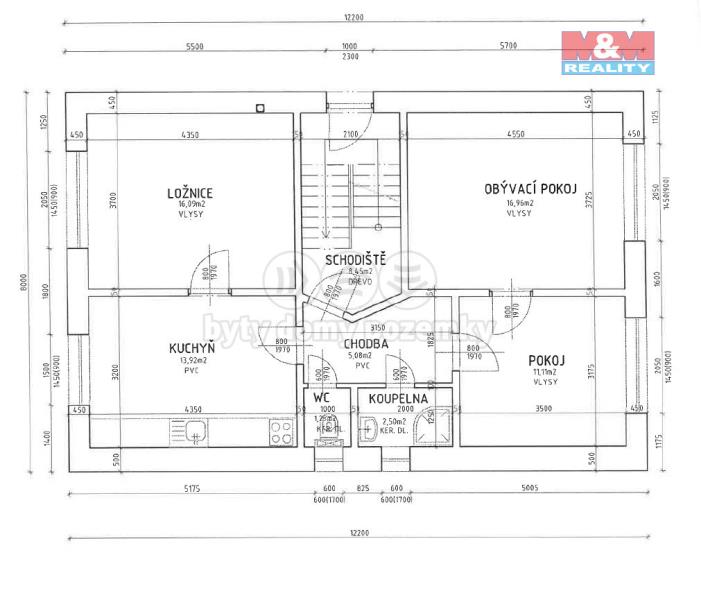
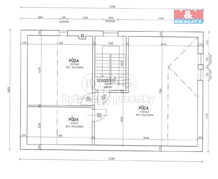
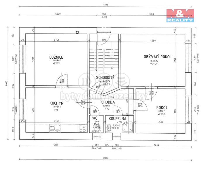
Které město je známe svým barokním zámkem, dominantním kostelem, vyhlášenou oslavou oblíbené tradice či arénou? Rozhodně Kravaře! V jejich samotném srdci nabízíme jedinečnou příležitost ke koupi nemovitosti, jejíž koncept je naprosto fenomenální. Tento ikonický dům s duší, která Vás naprosto okouzlí, se rozprostírá na jednom pozemním a třech nadzemních podlažích, přičemž záměrů ke koupi může být hned několik. Dle současné dispozice se nabízí dvě bytové jednotky 4+1, nevyužité podkroví připravené pro vznik dalšího bytu či ateliéru a vkusně upravený suterén, který může pohodlně sloužit jako kanceláře. To vše propojeno jedinečným schodištěm. Součástí pozemku je dvojgaráž s dílnou, kterou lze ponechat, upravit na bezbariérový domek nebo klidně uchopit zcela jinak (prodejna, salón, veterinární ordinace) či naprosto změnit identitu celého komplexu a vybudovat zde například soukromou kliniku. Aneb jak snadno a hravě propojit bydlení se službami či obchodem. Iniciativě se meze nekladou...

 
zobrazit více
 
 
 


Doplňující informace:

ID inzerátu ESO: 4344720
Inzerát vydán: 08.07.2025
Inzerát aktualizován: 01.09.2025
ID zakázky v RK: 900914061
Budova je z: Cihla
Stav: Velmi dobrý
Vlastnictví: Osobní
Umístění: Velmi dobrý
Nebytová plocha: 180 m2
Plocha pozemku: 397 m2
Užitná plocha: 180 m2
Energetická náročnost budovy:
G - Mimořádně nehospodárná
 
 

 

Bleskový dotaz makléři

K prodeji, Obchody, 180 m2, Kravaře, Náměstí

Text dotazu *
Váš telefon *
Váš e-mail
Zobrazit kontaktní informace
Odeslat
 
 
 
 

Ve schránce je 0 inzerátů.

zobrazit celou schránku
 
 

Nalezli jsme dalších 5 nemovitostí v podobné ceně.

 
 
reklama