K prodeji, Obchody, 138 m2, Praha 8, Zenklova

 
 
 
Lokalita:
Praha 8, Zenklova
 
 
Cena:
19 900 000 Kč / za nemovitost
 
cena včetně servis rk!
 
uvedená cena je: včetně provize Nabídněte prodejci Vaši cenu 
 
 

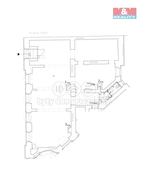
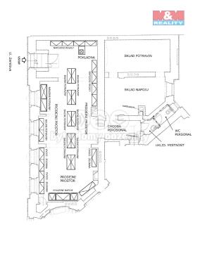
Exkluzivně nabízíme k prodeji výjimečný komerční prostor o užitné ploše 138 m², ideálně situovaný v centru obce Praha Libeň. Tato nemovitost se nachází v prvním nadzemním podlaží čtyřpodlažní cihlové budovy a je skvělou příležitostí pro podnikatele hledající atraktivní prostory pro obchod či poskytování služeb. Prostor disponuje třemi místnostmi a je ve velmi dobrém stavu, což umožňuje okamžité zahájení podnikatelské činnosti. V současné době je prostor v pronájmu. Dle dohody může nájemce pokračovat v nájmu nebo může nový majitel převzít pro své podnikání. Nyní se zde nachází Minimarket. K dispozici je také jedno podzemní podlaží, které může sloužit jako skladovací prostor. Strategická poloha v centru Libně zajišťuje výbornou dostupnost a viditelnost. Nechte se inspirovat touto jedinečnou příležitostí a přijďte se přesvědčit osobně. S financováním vám rádi pomůžeme.

 
zobrazit více
 
 
 


Doplňující informace:

ID inzerátu ESO: 4355925
Inzerát vydán: 29.08.2025
Inzerát aktualizován: 30.08.2025
ID zakázky v RK: 900911106
Budova je z: Cihla
Stav: Velmi dobrý
Vlastnictví: Osobní
Umístění: Velmi dobrý
Nebytová plocha: 138 m2
Užitná plocha: 138 m2
Energetická náročnost budovy:
G - Mimořádně nehospodárná
 
 

 

Bleskový dotaz makléři

K prodeji, Obchody, 138 m2, Praha 8, Zenklova

Text dotazu *
Váš telefon *
Váš e-mail
Zobrazit kontaktní informace
Odeslat
 
 
 
 

Ve schránce je 0 inzerátů.

zobrazit celou schránku
 
 

Nalezli jsme dalších 2 nemovitostí v podobné ceně.

 
 
reklama