K prodeji, Obchody, Uhlířské Janovice, Jungmannova

 
 
 
Lokalita:
Uhlířské Janovice, Jungmannova
 
 
Cena:
5 480 000 Kč / za nemovitost
 
 
uvedená cena je: včetně provize, včetně právního servisu Nabídněte prodejci Vaši cenu 
 
 

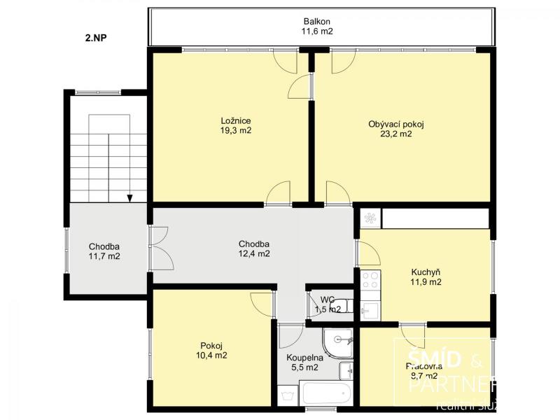
Dobrý den, nabízíme k prodeji prostorný objekt, který je aktuálně využíván jako rodinný dům o dispozici 2 x 4+1 a užitné ploše 303 m2. Stojí na pozemku o rozloze 917 m2 v Uhlířských Janovicích v ulici Jungmannova. Díky své poloze, dispozici a zařazení v územním plánu (OK - plocha občanského vybavení - komerční zařízení) nabízí široké možnosti komerčního využití. Navíc je zde možnost dokoupení 3 navazujících stavebních pozemků - každý cca 1 000 m2 a ceně 1 000 Kč/m2. Dům nabízí dvě samostatné bytové jednotky, každou o dispozici 4+1, jednu v přízemí a druhou v patře. Dále je zde prostorný sklep o velikosti přibližně 100 m2, jehož součástí je i garáž. Stavba má typické prvky šumperáku, velký balkon, plochou střechu a je celoplošně podsklepená. Na zahradě se nachází samostatně stojící garáž s dílnou a podkrovím se zastavěnou plochou 47 m2. Vytápění je zajištěno tepelným čerpadlem a voda je čerpána ze studny. Městský vodovod a kanalizace se nachází v blízkosti hranice pozemku. Dům je vhodný k rekonstrukci, která umožní novému majiteli přizpůsobit interiér i technické řešení svým představám. Díky dispozici dvoum samostatným bytům a velkorysé užitné ploše nabízí dům široké množství využití. Klíčové přednosti: - Poloha v zóně OK plocha občanského vybavení komerční zařízení - Rozlehlá stavba s dvěma samostatnými jednotkami a sklepem - Tři navazující pozemky vhodné pro další výstavbu nebo investici - Dobrá dopravní dostupnost (Kutná Hora 20 min, Praha cca 50 min) - Možnost kombinace bydlení a podnikání Uvedené m2 jsou pouze orientační. V případě zájmu o více informací či prohlídku mě neváhejte kontaktovat. Pomůžeme vám také se zajištěním financování.

 
zobrazit více
 
 
 


Doplňující informace:

ID inzerátu ESO: 4369155
Inzerát vydán: 11.11.2025
Inzerát aktualizován: 21.11.2025
ID zakázky v RK: 0
Budova je z: Smíšená
Stav: Dobrý
Umístění: Dobrý
Balkón: ANO
Terasa: ANO
Užitná plocha: 303 m2
Plocha pozemku: 917 m2
 
 

 

Bleskový dotaz makléři

K prodeji, Obchody, Uhlířské Janovice, Jungmannova

Text dotazu *
Váš telefon *
Váš e-mail
Zobrazit kontaktní informace
Odeslat
 
 
 
 

Ve schránce je 0 inzerátů.

zobrazit celou schránku
 
 

Nalezli jsme dalších 3 nemovitostí v podobné ceně.

 
 
reklama