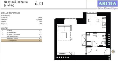
NABÍZÍME KE KOUPI nebytovou jednotka o dispozici 1+kk a celkové ploše 37 m2, která se nachází v přízemím podlaží šestipodlažního bytového domu na Břevnově. Bytový dům se nachází těsně u ulice Belohorská, nedaleko od parku Královka, či sportovních areálů na Strahově. Nebytová jednotka má dvoje okna a je směrována do vnitrobloku domu, do zahrady, zeleně. Nebytová jednotka je vhodná jako advokátní, projektová či výuková kancelář, též jako zázemí firmy. Vlastnictví: osobní Dispozice: 1+kk Celková plocha: 37 m2 Podlahová plocha: 37 m2 Podlaží: přízemí K dispozici je ihned. ARCHA realitní kancelář PRAHA Telefon: 737851059, 702072257, 608135458 Dat. schránka: vdc4dg E-mail: archa-rk@seznam.cz www.instagram.com/nemovitosti_archa www.facebook.com/nemovitosti.archa www.twitter.com/archa_life www.archa-rk.cz
Tel: 737 851 059 archa-rk@seznam.cz
U Stadionu, 911/1, 26601 Beroun www.archa-rk.cz
Ve schránce je 0 inzerátů.
K prodeji, Komerční prostory, 49 m2 Bělohorská
K prodeji, Obchody, 30 m2 Heleny Malířové