K prodeji, Jiné komer. prostory, Ustroń,Polsko

 
 
 
exkluzivně
 
Lokalita:
Ustroń,Polsko
 
 
Cena:
4 078 000 Kč / za nemovitost
 
 
Nabídněte prodejci Vaši cenu 
 
 

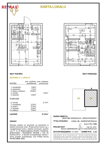
Exkluzivně Vám nabízíme k prodeji apartmány v lázeňském městě Ustroń, nacházející se ve Slezských Beskydech. JELENICA PARK je zcela nově vybudovaný areál s 24 apartmány, jež jsou umístěny tak dokonale, že je z každého nádherný výhled do okolí. Apartmán 3B. Užitná plocha 48 m², dispozice 3kk, 2x koupelna s toaletou, balkon, terasa, předzahrádka. Vytápění zajištěno plynovým kotlem s podlahovým topením a ohřevem vody. Samostatný odečet energií – voda, elektřina i plyn. Celo oplocený areál s bránou na dálkové ovládání, kamerovým systémem v mobilní aplikaci. K dispozici až dvě parkovací stání na jeden apartmán. Skladové prostory. Workoutové hřiště, dětský koutek. Údržba areálu zajištěna po celý rok. Využití pro trvalý pobyt, pro soukromé účely s neomezeným počtem dní v roce nebo možností nabídnout k pronájmu. O vše se postará agentura. Perfektní dostupnost z dálnice: Praha 420 km, Brno 220 km, Ostrava 60 km a z hraničního přechodu Český Těšín pouhých 25 km. Lázeňské město, blízkost obchodů a služeb. Jedinečná poloha a standard apartmánu zvyšují hodnotu nemovitosti a může navíc generovat značné příjmy z pronájmu. JELENICA PARK nabízí také možnost převzetí apartmánu na klíč. Díky spolupráci s renomovaným architektonickým studiem Idea Vám interiéry připravíme dle Vašich představ. UTROŃ je jediné město ve Slezských Beskydech se statutem lázeňského města. Již léta láká lidi, kteří chtějí využít širokou nabídku četných sanatorií, hotelů a penzionů. Odtud se snadno dostaneme do dalších blízkých turistických měst: Wisła, Brenna a Istebna. Dobře navazuje i na větší aglomerace. Místo má výborné podmínky pro relaxaci i horskou turistiku. Existuje zde mnoho turistických tras pro horské nadšence, včetně těch nejoblíbenějších na Čantorii a Równice. Milovníci dvou kol mají k dispozici četné cyklostezky, lyžaři zase několik lyžařských vleků. Největší zábavní park v Polsku ENERGYLANDIA je vzdálen pouhých 70 km a nabízí 133 atrakcí rozmístěných na ploše 74 hektarů, určených pro všechny věkové skupiny. K dispozici i další apartmány s užitnou plochou od 32 m² do 84 m² s cenou od 2 852 000 Kč do 6 906 000 Kč Většina apartmánu je patrová, menší mezonetové. Každý má jinou výměru. Uvedené výměry a přepočet ceny jsou pouze orientační . Pokud Vás naše nabídka zaujala prosíme kontaktujte nás. Toto místo si zamilujete!

 
zobrazit více
 
 
 


Doplňující informace:

ID inzerátu ESO: 4359274
Inzerát vydán: 17.09.2025
Inzerát aktualizován: 10.01.2026
ID zakázky v RK: 422953
Budova je z: Cihla
Stav: Ve výstavbě (nezkolaudováno)
Umístění: Ve výstavbě (nezkolaudováno)
Užitná plocha: 48 m2
Plocha zahrady: 209 m2
 
 

 

Bleskový dotaz makléři

K prodeji, Jiné komer. prostory, Ustroń,Polsko

Text dotazu *
Váš telefon *
Váš e-mail
Zobrazit kontaktní informace
Odeslat
 
 
 
 

Ve schránce je 0 inzerátů.

zobrazit celou schránku
 
 

Nalezli jsme dalších 151 nemovitostí v podobné ceně.

 
 
reklama